Kantonsschule Zürcher Oberland - Grosser Spezialtrakt
Der Architekt Max Ziegler - assistiert von späteren Architekturgrössen wie Alfred Roth, Ernst Vogt, Walter Eyer sowie dem Landschaftsarchitekten Ernst Cramer – hat mit dem Gebäudeensemble der Kantonsschule Zürcher Oberland ab 1953 bis 1969 in mehreren Etappen eine Schulanlage geschaffen, die den damaligen Qualitätsansprüchen des neuen Bauens entsprachen. Konstruktive Leichtigkeit, einfache ineinandergreifende Kuben, übersichtliche Erschliessungsstrukturen, sachgerechten und stilsicheren Materialeinsatz sowie viel Tageslicht überzeugen auch heute; als weitläufige in viel Grünraum eingebettete Campusanlage zeichnet sich die KZO als erstes Landgymnasium des Kantons Zürich aus.
Bedeutende bauliche Eingriffe sind die nordwestseitige Erweiterung des Haupttrakts sowie die Erstellung des Sporttrakts durch den Architekten Markus Dieterle in den Jahren 1986-1987. Die damaligen architektonischen Verständnisse erlaubten erhebliche Eingriffe an der Original-Substanz, die mit der ersten notwendigen energetischen Sanierung über die gesamte Schulanlage einhergingen.
Seit 2004 befassen wir uns der mit Weiterentwicklung sowie mit der technischen und normativen Instandsetzung der erst im Jahr 2002 ins kantonale Inventar der denkmalpflegerisch schützenswerten Objekte aufgenommenen Anlage. Nach den Vorgaben und Bedürfnissen der zeitgenössischen mittelschulischen Bildung wurde die Nutzung stetig optimiert.
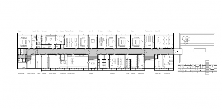
Im Grossen Spezialtrakt sind die naturwissenschaftlichen Fachbereiche Biologie, Chemie, und Physik sowie das Bildnerisches Gestalten konzentriert, bei denen das Experimentieren und das Entwerfen im Mittelpunkt stehen.
Denkmalpflegerische Fragen, «wie eine Erweiterung sich zum Bestand artikulieren soll», bestimmten den Diskurs seit dem ersten Layout der Zustandsanalyse bis zur finalen Materialisierung.
Der Entscheid für eine rekonstruktive Erweiterung basiert auf dem Willen, die Anlage nicht weiter zu fragmentieren, und ist keineswegs selbstverständlich.
Das neue Bauvolumen an die südliche Treppenanlage anzusetzen, bedeutet eine Vervollständigung der einzigartigen Struktur der Erschliessung mit den drei baukörperquerenden doppelgeschossigen Treppenhallen, die im Untergeschoss und Obergeschoss zweibündige Korridore und im Erdgeschoss die Nutzungscluster für Biologie und Physik zusammenbinden. Das neue, kubisch reduzierte Dachvolumen für die Gebäudetechnik begibt sich in eine Wechselwirkung zum körperdurchdringenden zylinderförmigen Überbau der benachbarten Aula. Einmal räumlich begründet und einmal technisch benötigt, was die denkmalpflegerische Frage der Gleichwertigkeit und Angemessenheit in den Raum stellte.
Zusätzliche durch den Brandschutz geforderte Ausgänge werden landschaftlich sanft in das Wegnetz eingebunden mit dem Ergebnis einer stärkeren arealinternen Visibilität und Erreichbarkeit. Wo früher Schulraumprovisorien, ein Biologieteich und ein Treibhaus - eher versteckt - einen Hinterhof bildeten, öffnet sich heute ein grosszügiges Aussenschulzimmer mit Sitztreppenanlage, neuem Biologieteich und einer Werkbank für das bildhauerische Gestalten zur offenen Landschaft.
Ein Schwerpunkt des denkmalpflegerisch-architektonischen Diskurses betraf die energetische Erneuerung der Fassade mit Schiebefenstern bei den Unterrichtsräumen und mit festen doppelgeschossigen Verglasungen in den Erschliessungsbereichen, was heute wie früher auf selbstverständliche Weise die Gebäude- und Nutzungsstruktur abbildet.
Kunststeinbeläge mit variantenreich gestalteten Mustern aus nur vier Grundelementen sowie originale Treppengeländer mit massivem Eichenbrett auf Chromstahl-Staketen sind arealübergreifend stilbildend und blieben erhalten. Neue feinprofilige Brandabschlüsse, semantisch den originalen Korridortüren nachgebildet, strukturieren die notwendigen Brandabschnitte.
Für die Optimierung der Raumwahrnehmung wurde der künstlichen Beleuchtung in den Schul- und Erschliessungsräumen nach historischer Referenz und mit moderner Lichttechnik ein hoher Stellenwert beigemessen.
- 年
- 2022
- Project Status
- 建設中
- クライエント
- Kanton Zürich
- Bauingenieure
- WaltGalmarini AG
- Landschaftsarchtitekten
- vetschpartner Landschaftsarchitekten AG
- Elektroingenieure
- Marquart AG
- HLKS-Ingenieure
- Basler + Hofmann AG
- Laborplanung
- Laborplaner Tonelli AG
- Planung Solaranlage
- Zenna AG
- Kunst am Bau
- Eric Schuhmacher, Andrea Clavadetscher, Scipio Schneider























