Neubau Siedlung Erikastrasse
Anstelle der heutigen Genossenschaftswohnungen an der Erikastrasse beim Bahnhof Wiedikon wird eine Wohnanlage für Menschen im dritten Lebensabschnitt entwickelt.
Der lärmbelastete Standort an der verkehrsreichen Seebahnstrasse sowie die massgebliche Ausrichtung des U-förmigen Hofrandgebäudes nach Nordosten bedeuten Standortnachteile, die es zu kompensieren gilt. Andererseits eröffnet die Lage am östlichen Rand des ausgedehnten Hofrandgebietes des Kreises 3 auch eine innerstädtische Panoramasicht in den weiten Freiraum, der durch den Bahneinschnitt und die breite Seebahnstrasse gebildet wird.
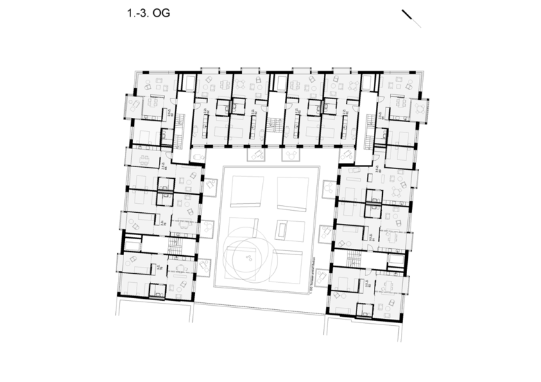
Der Projektvorschlag reagiert auf diese gegensätzlichen Randbedingungen im Wesentlichen mit einer Inversion des Erschliessungssystems für die Wohnsiedlung. Umgesetzt wird dies durch die vollständige Erschliessung über einen inneren vom Strassenraum durch verglaste Abschlüsse getrennten Ruhehof. Die gegenüberliegenden Hofzugänge liegen seitlich rückversetzt und lärmabgewandt von der Seebahnstrasse. Damit konstituiert sich parallel zur Seebahnstrasse eine innere Wegachse, die lateral am Hofumgang vorbeiführt und gleichzeitig Teil davon ist. Die optimierte Erschliessungsstruktur der Wohnanlage basiert auf insgesamt fünf Treppenhäusern, die einerseits als Zweispänner und andererseits als Dreispänner in den Gebäudeecken die insgesamt 57 Wohnungen erschliessen. Dabei kommt das Inversionsprinzip zur Anwendung, indem die Aufzüge direkt an den lärmbelasteten Strassenfassaden liegen und die grosszügigen Vorplatz-Podeste mit den Treppenläufen sich gegen den ruhigen und von Süden besonnten Innenhof über grosse vertikale Fensterbänder öffnen.
Im Erdgeschoss bildet der Hofraum zusammen mit dem gedeckten Umgang den zentralen Ort für die Begegnung, für die Erschliessung der gemeinschaftlichen Nutzungen; aber auch für die Kontemplation. Die Mehrfachnutzung ist Programm. Reichlich vorhandene Sitzgelegenheiten in Wandnischen, auf freien Stühlen mit Tischen oder auf Bänken an und im Hofgrün laden zum Verweilen ein. Die Gewerbe- und Ladenflächen im Erdgeschoss sind direkt von der publikumsintensiven Seebahn- und Bremgartnerstrasse zugänglich; wogegen der Gemeinschaftraum sowie die Nutzungen der Spitex von der ruhigen Erikastrasse und gleichzeitig vom Hof zugänglich bleiben.
Die Grundrisslösungen der verschiedenen Wohnungstypen reagieren auf die höchst unterschiedlichen Aussenraumqualitäten der Strassen- und Hofseite. Damit die Wohnungen in der Nutzung flexibel sind, werden viele Raumverbindungen mit Schiebetüren ausgestattet. Mit dem Austausch der Möblierung lassen sich in vielen Wohnungen die Wohn- und Schlafräume einfach austauschen.
- 年
- 2014
- Project Status
- 竣工済



