Schulanlage Saatlen

Zürich
Ecke Saatlenstrasse - Tramstrasse

.

Pausenplatz
Foyer Sportanlage - Mensa - Mehrzweckraum
Bewegungszone SKB
Stadtplan
Strukturmodell
Situation
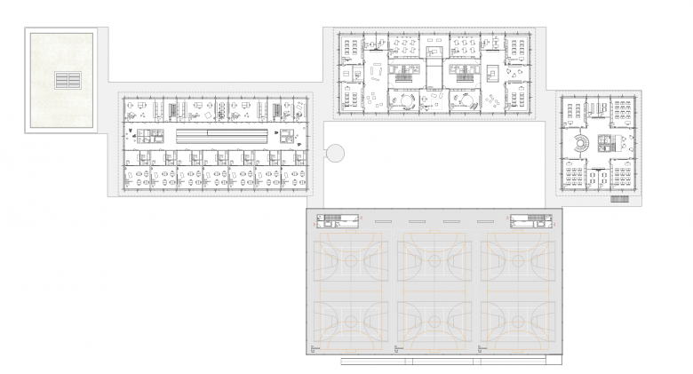
Erdgeschoss
1. Obergeschoss
2. Obergeschoss
Ansicht SEK - Schnitt PRIM - Ansicht SKB - Schnitt KDG
Ansicht KDG - Schnitt SKB - Schnitt Schwimbad - Ansicht PRIM - Schnitt SEK
Schnitt Turnhalle - Pausenplatz - Primarschule
Konstruktion
2020
Project Status
デザイン案
チーム
Landschaft: Claudia Wolfsenberger

Leuppi & Schafroth Architekten によるその他のプロジェクト 

Neubau Rütiwiesweg
Zürich, スイス
Villa Thuja
Boppelsen, スイス
Erweiterung Volksschule Stapfenacker
Bern, スイス
Fussgänger und Fahrrad Brücke
Kiew, Ukraine
Neubau Betreuungsgebäude Aemtler
Zürich-Wiedikon, スイス