Wohnüberbauung Bächlerstrasse
Zusammen mit weiteren Nachbarbauten bildet die Wohnanlage Bächlerstrasse 40-58 in Zürich-Affoltern eine Siedlungsstruktur, die in vielen Randquartieren der Stadt Zürich anzutreffen ist. Diese Siedlungstypologie leitet sich aus der Gartenstadtidee des frühen 20. Jahrhunderts ab und hat sich seit gut 50 Jahren weit herum bewährt.
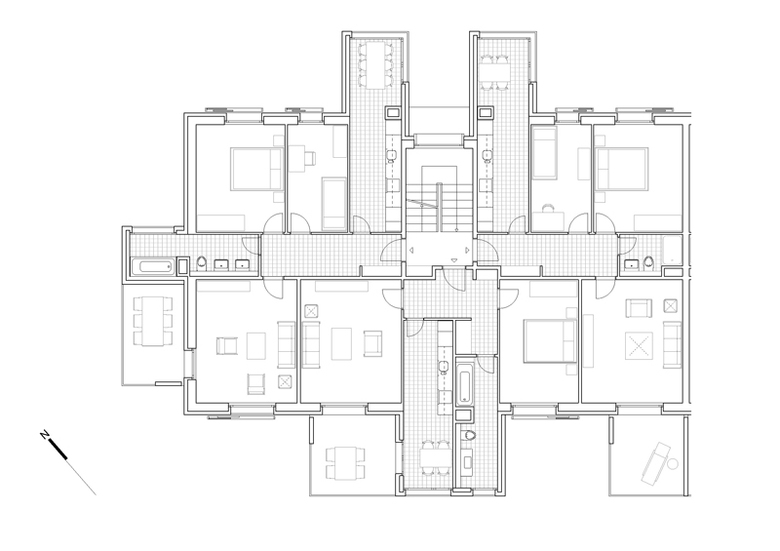
Die Grundrisse sind mit den Zwei- und Dreispännerhäusern bereits sehr kompakt organisiert, was die hohe Zahl von Wohnungen beweist. Die Wohnungen verfügen im Allgemeinen auch über genügend grosse Wohn- und Schlafzimmer. Hingegen entsprechen die Küchen und Bäder den heutigen Minimalstandards in keiner Weise. Die Balkone sind ebenfalls zu schmal.
Der Entwurf setzt konkret bei der „Mängelbehebung“ an und hat zum Ziel, mittels einer Standardanhebung im Küchen-, Bad- und Aussenraumbereich zeitgemässe Wohnungen zu schaffen. Die entstehenden Volumenerweiterungen – die PLUG-INS - sind mit grosszügigen Verglasungen ausgestattet und erweitern die Küchen um einen hellen Essplatz mit direktem Aussenraumbezug. Bei den schlanken Bädern werden die PLUG-INS genutzt, um mit einer zweiten Raumzone den Badbereich vom Sanitärbereich zu entkoppeln. Grosszügige Balkone und Sitzterrassen statten die eher kleinen Wohnungen mit einer signifikanten Qualität aus und runden damit das Wohnungsangebot ab.
Das resultierende Angebot an preisgünstigen Wohnungen entspricht dem Wohnungsmarkt in Zürich-Affoltern und eignet sich sowohl für Kleinfamilien, Allein stehende, Menschen im dritten Lebensabschnitt, Studierende oder generell für Personen mit einem knapperen Budget.




