Disseny Hub Barcelona
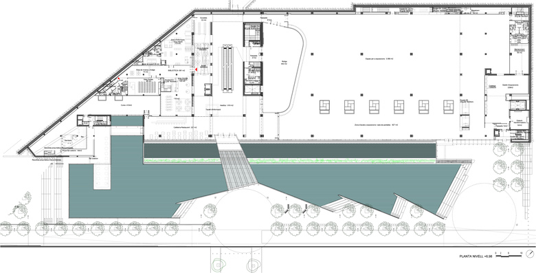
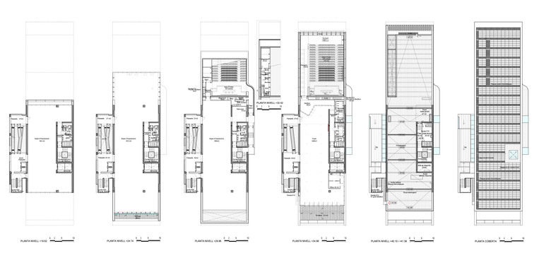
The Disseny Hub Barcelona building contains the Design Museum of Barcelona with the collections of the Museum of Decorative Arts, the Museum of Ceramics, the Museum of Textiles and Clothing and the department of Graphic Arts. Apart from these house the Municipal public library “El Clot-Josep Benet”, the offices of FAD (Foment de les Arts i del Disseny) and the BCD (Barcelona Centre del Disseny). The building is composed of two parts: basement floors (using the topographic difference in levels of approx. 8.00m) and the five floor anvil shaped building that uses the 33m cantilever to reduce its footprint to occupy the minimum public space of the future park. A sunken canal allows the southern light to enter the basement floors. A public pedestrian street runs through the lower floors of the “anvil” linking the lower district with the metro-station and with escalators up to the park and tramway. The upper floors contain permanent exhibition halls and a 200 seat auditory. The East basement contains the main 8m high exhibition hall and below it the reserve collections, workshops, research laboratories and offices. The building is set within a new public space forming part of the future Plaça de les Glòries.
- 年
- 2013







