Erweiterung Spital Frutigen
Der „Neubau Nordtrakt“ des Spital Frutigen und des Pflegeheim Frutigland zeichnet sich durch eine hohe Nutzungsflexibilität aus. Als kompakter, west-ost orientierter Annex ist er an den bestehenden Nordtrakt gebaut. Er entstand in Zusammenarbeit mit JFB-Architekten.
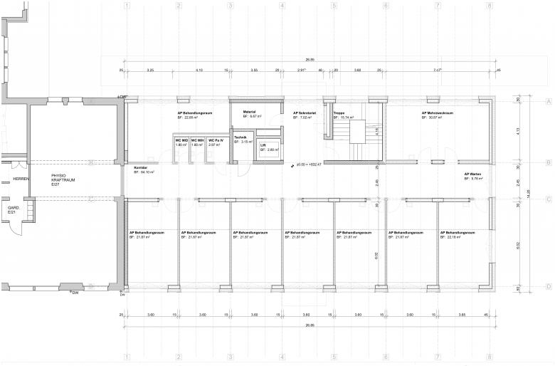
Im viergeschossigen Neubau sind verschiedene Nutzungen untergebracht: Rettungsdienst, Ambulante Psychiatrie, Helikopterlandeplatz, Spitex-Räumlichkeiten, Pflegeheim und Alterswohnungen.
Generell wurde auf grösst mögliche Nutzungsflexibilität geachtet denn niemand weiss wie sich die Bedürfnisse des Spitals zukünftig weiter entwickeln werden. Die Räume entlang der Hauptfassade sind nutzbar als Büroräume, Pflegezimmer, Behandlungsräume sowie als Wohnräume. Mit vertretbarem Aufwand können die Nutzungen an die jeweiligen Bedürfnisse angepasst werden.
Die Dimensionen des neuen Gebäudeteils werden wesentlich durch die Anforderungen des Helilandeplatzes mitbestimmt. Insbesondere wurden ein sicheres Anflugregime und ein einfacher Patiententransport berücksichtigt.
Die Architektonische Gestaltung der Fassade orientiert sich am Bestand ohne sich unterzuordnen. Die auffallend grossen Fenster ermöglichen es auch den im Bett liegenden Patienten, die Aussicht in die Berge zu geniessen.
- 年
- 2016
- クライエント
- Spitäler FMI AG
- チーム
- JFB Architekten Frutigen





