Umbau/Neubau Alterswohnungen

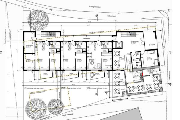
Das Konzept ging davon aus, dass das denkmalgeschützte Wohnhaus stehen blieb. Die übrigen Ökonomiebauten wurden abgebrochen und an deren Stelle wurde neu gebaut. Die neue Disposition übernahm weitgehend die ursprüngliche Gebäudestellung an der Dorfstrasse und Büsingerstrasse. Das bestehende Wohnhaus wurde mit einem Neubau ergänzt, sodass an der Dorfstrasse ein Kopfbau entstand. Entlang der Büsingerstrasse wurde ein Längsbau errichtet. Durch diese Anordnung entstand gegen Süden ein gut geschützter und optimal besonnter Hof.

Der 2-geschossige Kopfbau dient als Hauptzugang der Anlage und wird über Eck erschlossen. Hier sind Eingangshalle mit Treppenanlage und Lift sowie allgemeine Räume platziert. Im Altbau enstand im Erdgeschoss ein Cafe und im Obergeschoss eine Wohnung. Im Längsbau wurden 10 Wohnungen mit 2.5-3.5 Zimmern untergebracht.

2009

Oechsli + Partner によるその他のプロジェクト 

Neubau 4 MFH im Güetli
Schaffhausen, スイス
Fassadensanierung Staatsarchiv und Gerichtsgebäude
Schaffhausen, スイス
Neugestaltung Cafeteria Cilag
Schaffhausen, スイス
Umbau und Sanierung Vorstadt 13
Schaffhausen, スイス
Umbau Kirche in Wohnhaus
Feuerthalen, スイス