Grundschule Bieber Waldhof

Ottersfuhrstraße 8, 63073 Offenbach, ドイツ
© Thomas Ott

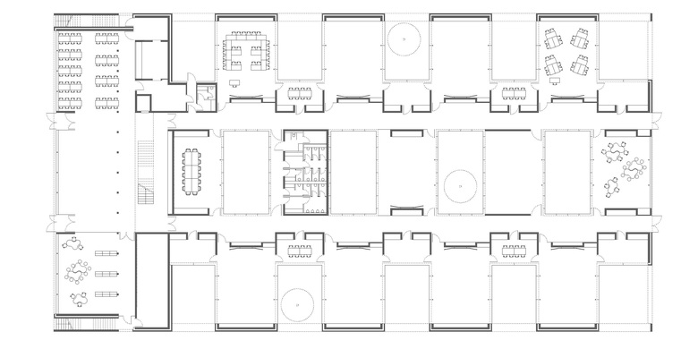
Der Neubau der Außenstelle Waldhof umfasst den Bau einer 2-zügigen Grundschule mit Betreuungsangebot.

Der zweigeschossige Kopfbau im Westen, in welchem die gemeinschaftlichen Nutzungen angeordnet sind, markiert den Haupteingang. Über den erdgeschossigen, teppichartig organisierten Klassenbereich, welcher kindgerecht kleinmaßstäblich an den Kopfbau anschließt, gelangen die Schüler zum geschützten, im rückwärtigen Bereich gelegenen Schulhof. Jedem Klassenraum ist ein Klassengarten zugeordnet, der von der jeweiligen Klasse gepflegt und bepflanzt werden kann.

Zeitraum
2009 - 2014

© Thomas Ott
© Thomas Ott
© Thomas Ott
© Thomas Ott
© Thomas Ott
© Thomas Ott
© Thomas Ott
© Thomas Ott
© Thomas Ott
© Thomas Ott
© Thomas Ott
© Thomas Ott
© Thomas Ott
© Thomas Ott
© Thomas Ott
© Thomas Ott
© Thomas Ott
© Waechter + Waechter Architekten BDA, Darmstadt
2014
クライエント
Stadt Offenbach
Aufgabe
Grundschule mit Einfeldturnhalle, Offenbach Bieber, Waldhof

Waechter + Waechter Architekten によるその他のプロジェクト 

Sanierung und Aufstockung Herderschule
Darmstadt, ドイツ
AFZ Assessment- und Förderzentrum Neuwied
Neuwied-Engers, ドイツ
AIZ ‐ Akademie der Deutschen Gesellschaft für Internationale Zusammenarbeit (GIZ) am Campus Kottenforst
Bonn, ドイツ
Internat Berufsbildungswerk Josefsheim
Olsberg, ドイツ
Haus im Burggarten – Wohnpflegeheim
Breitenbach am Herzberg, ドイツ