Plenarsaalgebäude Hessischer Landtag
Schlossplatz 1-3, 65183 Wiesbaden, ドイツ
© Thomas Ott
’Der Neubau des Plenarsaalgebäudes des Hessischen Landtages besticht durch die Einfachheit seiner Großform. Es gelingt ihm, seine Umgebung neu zu ordnen und wie nebenbei mit seinen Kanten klare Stadträume zu definieren. Auf den städtebaulichen, in seiner Maßstäblichkeit überaus heterogenen Kontext mit einer sehr plastischen Gestaltung des Baukörpers zu reagieren, erweist sich als äußerst wirkungsvoll. Der Dialog mit der vorhandenen historischen Bebauung, der aus einem Verständnis einer zeitgemäßen, modernen Architektursprache geführt wird, trägt zum überzeugenden Gesamteindruck bei.’
© Maximilian Meisse
© Maximilian Meisse
© Thomas Ott
© Thomas Ott
© Thomas Ott
© Maximilian Meisse
© Thomas Ott
© Thomas Ott
© Thomas Ott
© Thomas Ott
© Thomas Ott
© Thomas Ott
© Maximilian Meisse
© Maximilian Meisse
© Thomas Ott
© Thomas Ott
© Maximilian Meisse
© Thomas Ott
© Thomas Ott
© Thomas Ott
© Thomas Ott
© Thomas Ott
© Thomas Ott
© Thomas Ott
© Thomas Ott
© Thomas Ott
© Thomas Ott
© Thomas Ott
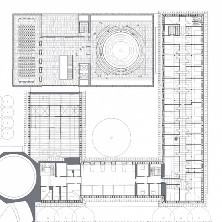
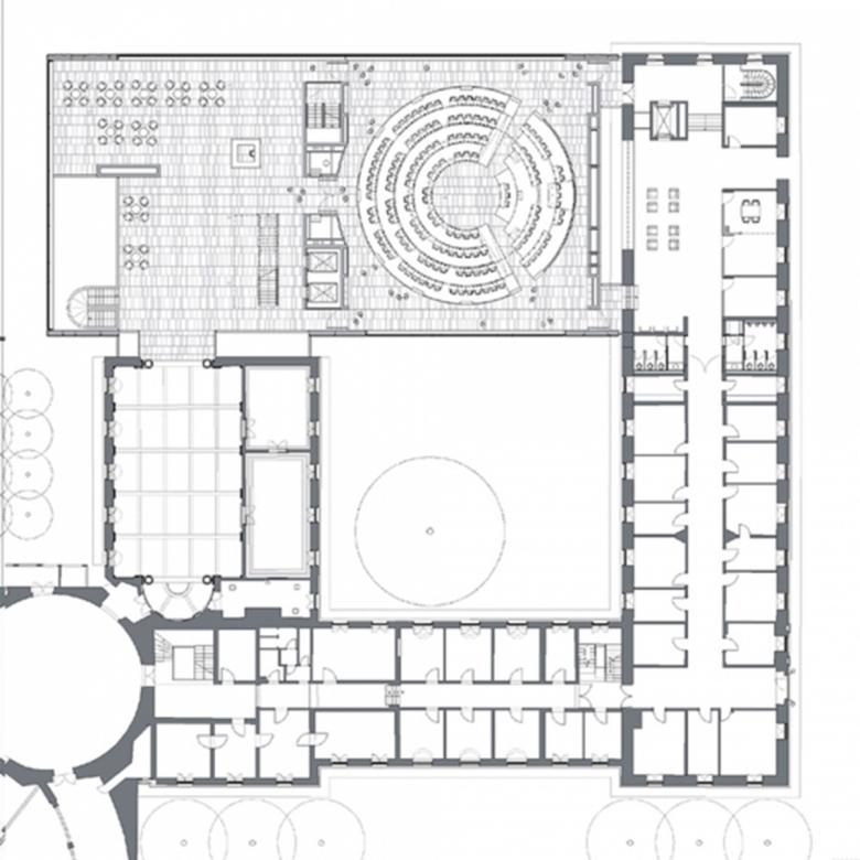
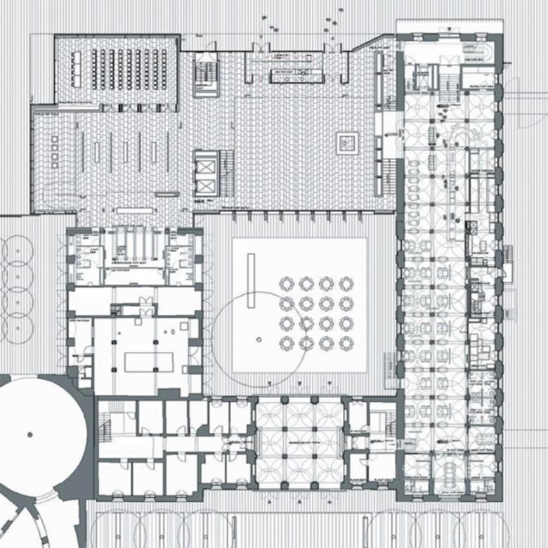
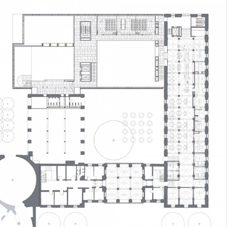
© Waechter + Waechter Architekten BDA, Darmstadt
© Waechter + Waechter Architekten BDA, Darmstadt
© Waechter + Waechter Architekten BDA, Darmstadt
© Waechter + Waechter Architekten BDA, Darmstadt
© Waechter + Waechter Architekten BDA, Darmstadt
© Waechter + Waechter Architekten BDA, Darmstadt
© Waechter + Waechter Architekten BDA, Darmstadt
-
年
-
2008
-
クライエント
-
Land Hessen endvertreten durch Staatsbauamt Wiesbaden
-
Wettbewerb
-
2001, 1. Preis
-
Wettbewerb
-
2008, BDA-Hessen J.-W.-Lehr-Plakette
-
Besondere Anerkennung
-
2008, Vorbildliche Bauten in Hessen
-
Besondere Anerkennung
-
2009, Deutscher Natursteinpreis
-
Engere Wahl
-
2011, Deutscher Architekturpreis
Sanierung und Aufstockung Herderschule
Darmstadt, ドイツ
AFZ Assessment- und Förderzentrum Neuwied
Neuwied-Engers, ドイツ
AIZ ‐ Akademie der Deutschen Gesellschaft für Internationale Zusammenarbeit (GIZ) am Campus Kottenforst
Bonn, ドイツ
Internat Berufsbildungswerk Josefsheim
Olsberg, ドイツ
Haus im Burggarten – Wohnpflegeheim
Breitenbach am Herzberg, ドイツ