Sanierung und Aufstockung Herderschule
Am Kapellberg 1, 64285 Darmstadt, ドイツ
写真 © Thilo Ross, Heidelberg
Das neue Kupferdach stellt den würdevollen Abschluss des Baukörpers wieder her, ohne das Vergangene zu zitieren. An den Längsseiten werden die Dachflächen raumhoch aufgefaltet, so dass durch die schaufensterartig verglasten Öffnungen die Räume einen atemberaubenden Blick auf Bessungen und die angrenzende Petrusgemeinde bieten. Die neue Dachmodulation mit den Öffnungen interpretiert unter Berücksichtigung der engen Vorgaben des Bebauungsplans die kriegsbedingt zerstörte ornamentale Giebelseite neu.
写真 © Thilo Ross, Heidelberg
写真 © Thilo Ross, Heidelberg
写真 © Thilo Ross, Heidelberg
写真 © Thilo Ross, Heidelberg
写真 © Thilo Ross, Heidelberg
写真 © Thilo Ross, Heidelberg
写真 © Thilo Ross, Heidelberg
写真 © Thilo Ross, Heidelberg
写真 © Thilo Ross, Heidelberg
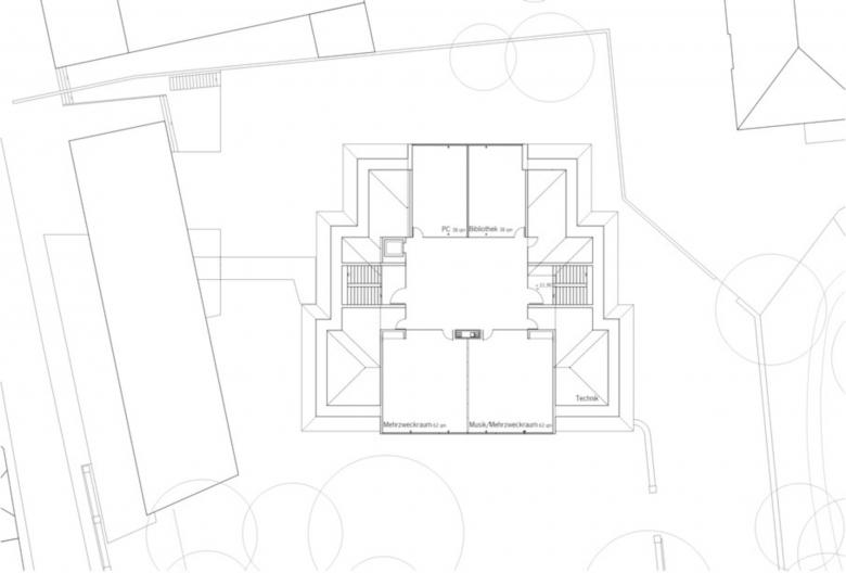
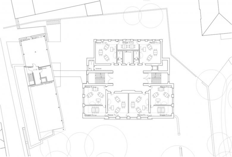
図面 © Waechter+Waechter Architekten BDA, Darmstadt
写真 © Waechter+Waechter Architekten BDA, Darmstadt
-
年
-
2020
-
クライエント
-
Wissenschaftsstadt Darmstadt
AFZ Assessment- und Förderzentrum Neuwied
Neuwied-Engers, ドイツ
AIZ ‐ Akademie der Deutschen Gesellschaft für Internationale Zusammenarbeit (GIZ) am Campus Kottenforst
Bonn, ドイツ
Internat Berufsbildungswerk Josefsheim
Olsberg, ドイツ
Haus im Burggarten – Wohnpflegeheim
Breitenbach am Herzberg, ドイツ
Schulzentrum Sallerner Berg Regensburg
Regensburg, ドイツ