Maison de la Chine

View from the Peripherique at dusk
Photo © ©Tian Fangfang

A permanent exposition of architecture
This project is located in the Cité Internationale Universitaire de Paris (CIUP) in the 14th Arrondissement of Paris. The university city was established to provide housing primarily to international students in Paris in 1925 and has now more than 40 dormitory buildings named after different countries. It is well known for its remarkable collection of architecture, such as the ‘Collège Néerlandais’ (The Netherlands College,1926) designed by Willem M. Dudok, the ‘Pavilion Suisse’ (The Pavilion of Switzerland, 1930) by Le Corbusier, the ‘Maison du Brésil’ (Home of Brazil,1954) by Lucio Costa and Le Corbusier, and the ‘Pavilion de L’Iran’ (Pavilion of Iran,1969) by Claude Parent.

A long-waited House of China
In 1930, Chinese architecture student Yu Ping-Lih in France proposed a Maison Chinoise, or Zhongguo Xueshe in Chinese, as his diploma project since the CIUP had allocated a lot to China without charge. In the year before, Association for the Realization of Maison Chinoise in the Cité Universitaire de Paris was organized by Chinese students from various universities in Paris and published a manifesto pleading the Chinese government then to fund such important project but without success. Yu’s drawings are now kept in the archive of Southeast University in Nanjing. Finally in 2017, a design competition was held to produce a proposal for the House of China with the official name of Fondation de Chine. The scheme of FCJZ x Coldefy was selected as the winning entry from a group of five Sino-French teams.

Living with landscape
Fondation de Chine, commonly known as Zhongguo Xueshe or Maison de la Chine, occupies a rather narrow piece of land on the south edge of the CIUP, with a sports field bordering its north and the Boulevard Peripherique (the Ring Road) to its south.
The initial idea for this facility was to compose the 300 single-occupation-dormitories with a 500-person cultural activity hall into a conceptual village and then, to better fit onto the site, simplified to a loop formation, after studying the extended family housing type in Southern China Tu Lou, which means “earth building” in Chinese since it is typically built with rammed earth and has another name of Da Yuan Lou or “big round building”, for its typical circular configuration.
Le Corbusier’s design for the Pavilion Suisse was centered around the concept of healthy living, which we value just as much today. Therefore, with Tu Lou as our main inspiration, we arranged the dormitory rooms in the shape of an irregular, open ring around a central courtyard, in order to allow student life to unfold in a pleasing natural environment. The surrounding area and the rooftop of the building are designed as gardens, while the staircase in the central courtyard further links a series of platforms together, creating a vertical landscape in the heart of the building. After approving our design proposal, the client named poetically the building He Yuan, meaning the Garden of Harmony.

Materiality with cultural DNAs
To achieve a distinct genetic connection with Chinese culture in the architecture through construction not through style or image as in Yu’s design in 1930, grey clay bricks are deployed as the main material on the exterior façade; through various brick-laying techniques inspired by the traditional bonds in ancient China including Die Se or cantilevering of bricks, we will be able to achieve porosity, relief in the wall, as well as projected eaves so that to demonstrate details and crafts as expressive architectural forms. Simultaneously, the undulation on the building facade is a measure to express the individuality of rooms thus their residents while addressing the issue of noise pollution from the Peripherique. A wood grating lines the entire inner façade around the courtyard; together with the clay bricks on the outer facade, such material composition reiterates once more the ancient Chinese definition of architecture as Tu Mu or earth and wood while
remaining a local project since the bricks on the building were hand-made in Europe.

Credits and Data
Client: The Cité Internationale Universitaire de Paris (CIUP) / Beijing Capital Group
Location: 14th Arrondissement, Paris, France
Architects: Atelier FCJZ, Coldefy
Atelier FCJZ Design Team: Yung Ho Chang, Lijia Lu, Cheng Yishi, Simon Lee, Meng Yao
Coldefy Design Team: Thomas Coldefy, lsabel Van Haute, Marc Franco, Marianna Guarino, Daniel Katz, Marceau Portal, Yizhou Hong, Ettore Musso, Beatrice Congiu, Marco Proietti, Vincent Vaulot, Sophie Graux, Zoltan Neville, Zhuo Wang
Structure Design: AEDIS Ingenierie
MEP Design: S2T
Sustainability: Le Sommer Environnement
Landscape Design: Base
Kitchen Design: Behal
Acoustics Consultants: Lamoureux acoustics
Scene Design: Peytavin
General Contractor: SICRAIle-de-France
Building Area: 8287m2
Site Area: 2800m2
Footprint Area: 1520m2
Building Height: 24.3m
Design Time: 2017
Completion Time: 2023
Photographs: Tian Fangfang

North elevation with entrance
Photo © ©Tian Fangfang
Southeast corner
Photo © ©Tian Fangfang
In the central courtyard looking west
Photo © ©Tian Fangfang
Where the passage meets the stair
Photo © ©Tian Fangfang
Looking at the central courtyard from the passage
Photo © ©Tian Fangfang
Accessing the rooftop garden from the central courtyard
Photo © ©Tian Fangfang
Close-up of the curvilinear portion of the brick wall
Photo © ©Tian Fangfang
Floor Plans
Drawing © ©FCJZ
Site Plan
Drawing © ©FCJZ
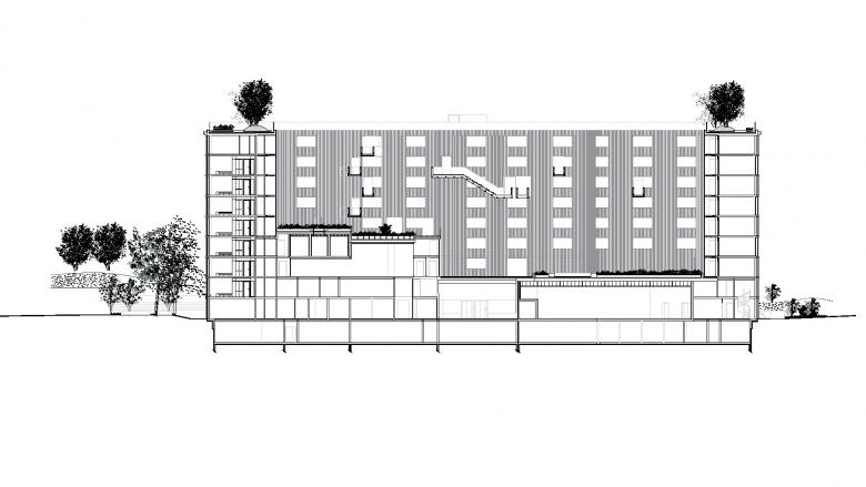
Longitudinal Section
Drawing © ©FCJZ
Cross Section
Drawing © ©FCJZ
Ano
2023

Outros projetos por Atelier Feichang Jianzhu 

No Name Art Museum
ChunYangTai Arts and Cultural Centre
Forbidden City Cultural Relics Museum, Chongqing
China Academy of Art Liangzhu Campus, Hangzhou
Tourist Orientation Center, Dalinor National Natural Reserve
Dalinor National Natural Reserve, China