Fachhochschule Campus Bielefeld
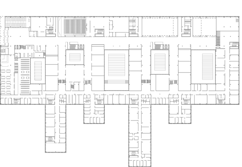
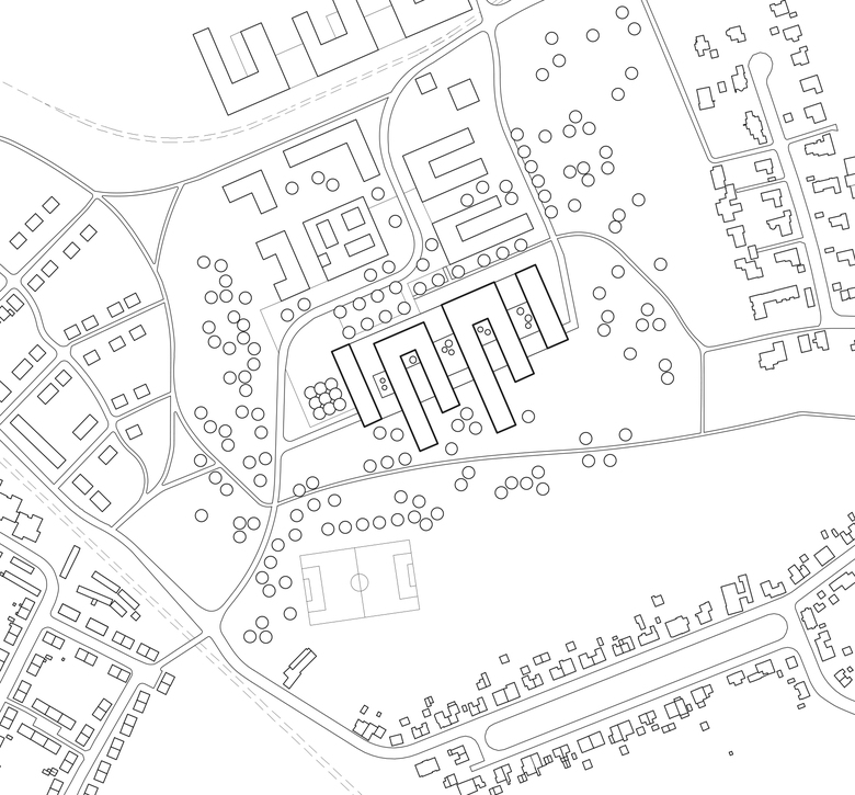
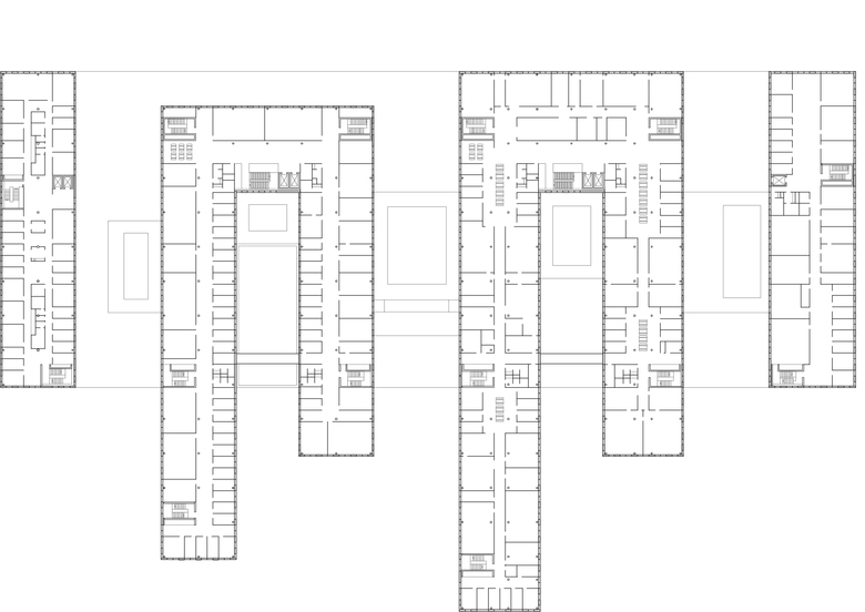
Die neue Fachhochschule befindet sich im im südlichen, der Landschaft zugewandten Bereich des Hochschulcampus Nord. Zum Campus wird eine klare Raumkante formuliert, während die Seite zur Landschaft differenziert und offen ausgebildet ist. Vom zentralen Campusplatz kommend betritt man die Eingangshalle, aus der sich die Magistrale als Haupterschließungsachse weiterentwickelt und das Erschließungskonzept des Masterplans mit seinen sogenannten „Hot spots“ fortführt. Die Fassade mit ihren pixelartigen farbigen Glasflächen entstand in Zusammenarbeit mit dem Künstler Josef Schwaiger.
Architekten
Auer Weber
Bruttogeschossfläche
92.200 m2
Bruttorauminhalt
382.322 m3
Leistungsbild
Lph. 1 – 9 HOAI
Fotografie
Roland Halbe
- Ano
- 2015












