Miss X Penthouse

Visualization © 2017

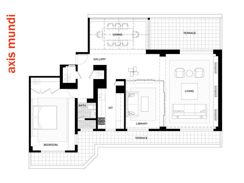
The Penthouse for Miss X is a duplex penthouse with superb city views on the top floor of an apartment building on the UES of Manhattan.

The apartment is designed with the idea to have a place to unwind as well as to relax and be together with family and friends. The open floor plan has a large seating area directed toward the terrace on both sides. The dining area and kitchen are directed to views of downtown.

The fireplace (clad in natural saddle leather tiles) and circulation area are connecting elements and enhance the spaciousness of the living area. The top floor accommodates the sleeping zone with two bedrooms and two baths. Wide plank oak floors and unfinished plaster walls lend a soft modernist feel to the rigorous layout.

Design: John Beckmann
Renderings: Catalin Sandru
© Axis Mundi Design LLC

Visualization © 2017
Visualization © 2017
Drawing © 2017

Outros projetos por Axis Mundi 

Winning entry for LA+ ICONOCLAST COMPETITION TO REDESIGN CENTRAL PARK 2018 (sponsored by the University of Pennsylvania)
AMERICA: State of Emergency
New YOrk, USA
Finsight Headquarters
New York, USA
Black Swans
New York, USA
Other Bodies + Antibodies
London