Ersatzneubau Wohnhaus Seebahnstrasse 141

Seebahnstrasse 141, 8003 Zürich, Suíça

Das 1896 erstellte Mehrfamilienhaus mit Gewerbe ist Teil des Blockrandes entlang der Seebahnstrasse, welcher parallel zum Bahneinschnitt zwischen Bahnhof Wiedikon und Hauptbahnhof verläuft. Im Gegensatz zur Hoffassade mit geringem Abstand zum gegenüberliegendem Gebäude ist die repräsentative Strassenfassade zu einem grossen Stadtraum mit breitem Trottoir, Strasse und Bahneinschnitt hin orientiert. Das Grundstück wird diagonal vom Zimmerbergtunnel unterquert. Die durch den Autoverkehr verursachte Lärmbelästigung schränkt die Möglichkeit für die Grundrissgestaltung sowohl für ein Umbau- als auch für ein Neubauprojekt massiv ein.
Obwohl 2018 eine Baubewilligung für ein Umbauprojekt mit Aufstockung vorlag, erteilte die Bauherrschaft 2019 den Auftrag für ein eine Machbarkeitsstudie, um mit Varianten das Potenzial des Grundstückes aufgrund der unterdessen rechtskräftigen
BZO 2016 aufzuzeigen. Aus dieser Studie stellte sich der Vorschlag für einen Ersatzneubau unter Bewahrung der Strassenfassade als beste Variante heraus.
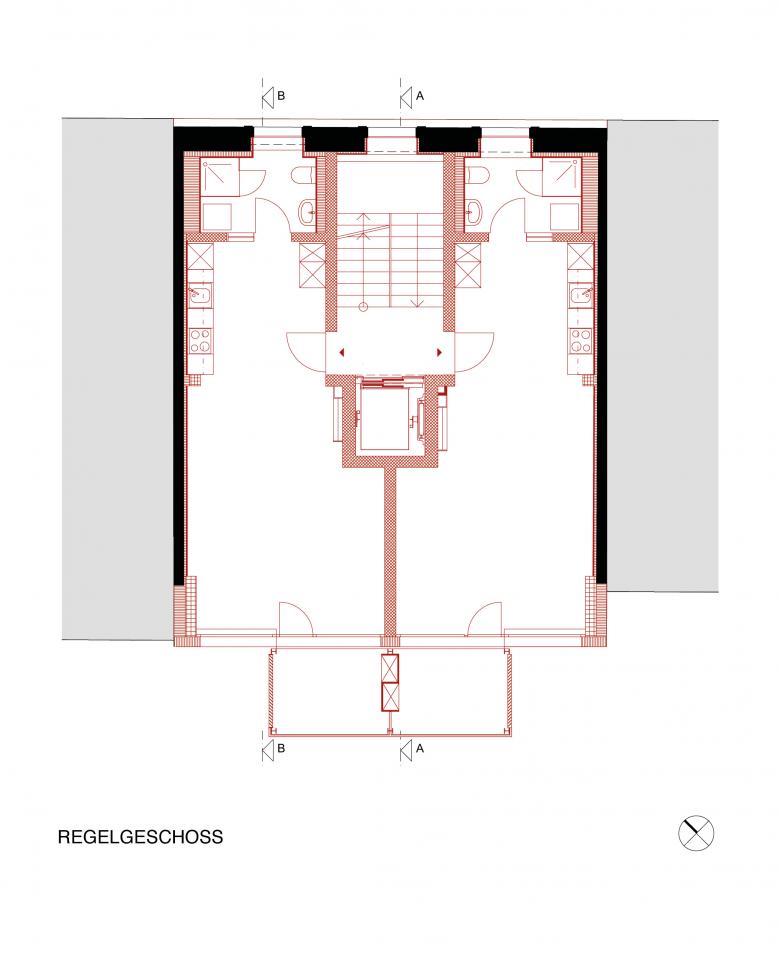
Mit diesem Ansatz können die lärmunempfindlichen Räume wie Treppenhaus und Nasszellen strassenseitig und der Wohn- und Schlafbereich der neun Studios sowie der Duplex-Wohnung lärmabgewandt angeordnet werden. Im Erdgeschoss tritt hofseitig anstelle der Gewerbenutzung und der Garage eine Zweizimmerwohnung, sowie zur Strasse hin orientiert der Veloabstellraum und der eingerückte Hauseingang. Die ursprünglich exzentrisch angeordneten Balkone mussten aufgrund von nachbarschaftlichen Vereinbarungen im zentrischen Balkonturm zusammen-gefasst werden, welcher den Aussenraum für acht Studios bildet. Das Studio im ersten Dachgeschoss verfügt über eine Terrasse im Dacheinschnitt, während die Dachzinne der Maisonettewohnung im ersten und zweiten Dachgeschoss zugeordnet ist.
Der im Minergie-Standard geplante Ersatzneubau wird mit einer Luft- Wasser-wärmepumpe in Split- Bauweise beheizt. Sämtliche Wohnungen verfügen über eine Komfortlüftung. Im Gegensatz zu dem mit Eternitschindeln eingedeckten Steildach zur Strasse wird mit der Indach-PV-Anlage des hofseitigen Steildaches Strom generiert. Das Gebäude ist bis und mit der Decke über dem erstem Dachgeschoss als Massivbau geplant, das zweite Dachgeschoss sowie die Steildächer sind jedoch in Holzelementbauweise konstruiert. Die Innendämmung aus Aerogel im Treppen-haus und aus Mineralwolle in den Nasszellen ermöglicht es, die historische Strassen-fassade in ihrer originalen Gestaltung stehen zu lassen.

Ano
2025

Outros projetos por Beat Nievergelt 

Umbau und Aufstockung MFH Zwinglistrasse 18
Zürich-Aussersihl, Suíça
Umbau Salemskapelle Steinwiesstrasse 34
Zürich, Suíça
Neubau Alte Landstrasse 145
Thalwil, Suíça
Neubau Haus Siesta Hotel Artos
Interlaken, Suíça
Umbau MFH Schaffhauserstrasse 438
Zürich-Seebach, Suíça