Umbau MFH Schaffhauserstrasse 438
Das Gebäude aus dem Jahr 1896 des Architekten Philipp Thomas ist im Inventar der kunst- und kulturhistorischen Schutzobjekte von kommunaler Bedeutung aufgeführt. Mit seinem zurückhaltend vorgetragenen Fassadenschmuck und den Kleinwohnungen für bescheidene Wohnansprüche ist es in sozialgeschichtlicher und bautypologischer Hinsicht ein wichtiger Vertreter des städtischen Wohn- und Geschäftshauses aus der Stilepoche des Historismus.
Das Gebäude ist Teil einer aus neun Mehrfamilienhäusern im Strassendreieck von Fries-, Grünhalden- und Schaffhauserstrasse im Neurenaissancestil angelegten Blockrandbebauung, die sich einen gemeinsamen Innenhof teilen.
Strassengevierte entwickelten sich meist mit viergeschossigen Blockrand-bebauungen, wenige wurden jedoch baulich wie der «Seebacherhof» geschlossen.
Die breiten Fenstergewände im 1. Obergeschoss sind mit Dreieck- und Segmentgiebeln geschmückt. Die repräsentative Strassenfassade wird von zwei markant profilierten Gesimsbändern, die über dem Erdgeschoss und dem 2. Oberschoss ansetzen, horizontal gegliedert. Der «Seebacherhof» ist die erste Blockrandbebauung im Quartier in einer ebenso seltenen wie grossmassstäblichen Historismus-Architektur.
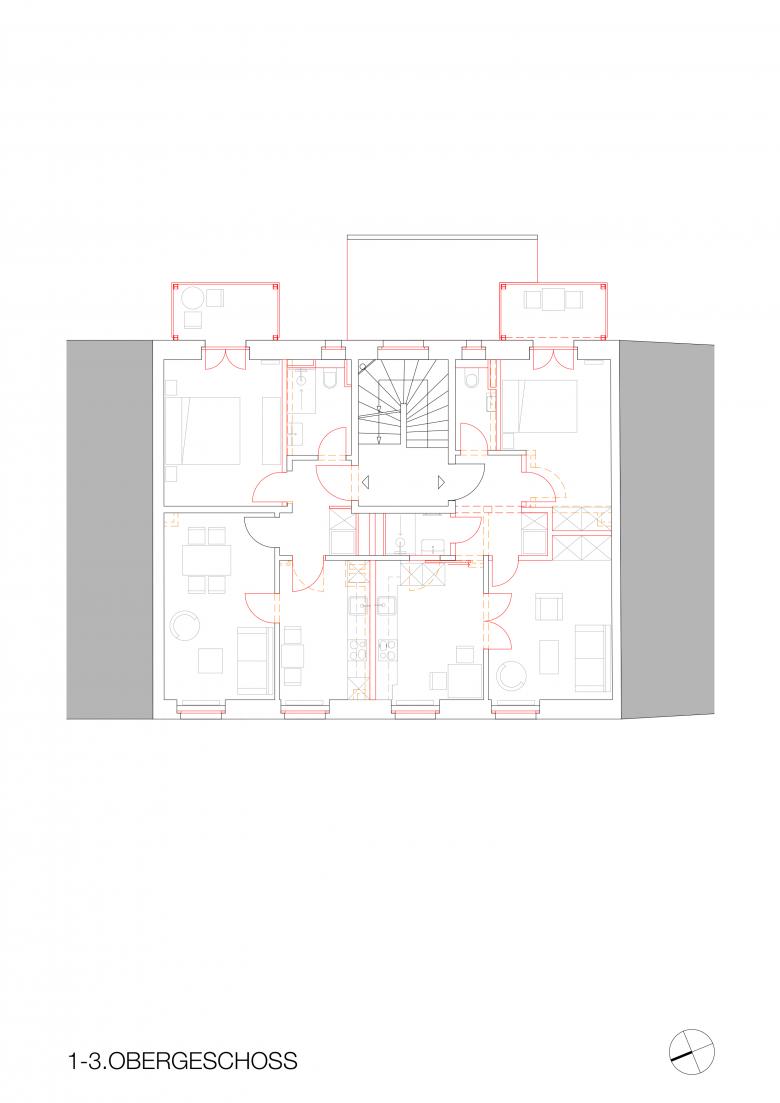
Damit wie ursprünglich vorhanden auf jedem Geschoss zwei Wohnungen realisiert werden konnten, musste der sich um das Treppenhaus schlängelnde Korridor aufgehoben werden. Aufgrund der Lärmbelastung der Schaffhauserstrasse wurden die Küchen strassenseitig angeordnet, so wurde es möglich für jede Wohnung ein lärmabgewandtes Zimmer zu schaffen, das sich zum ruhigen Innenhof hin orientiert. In den vom Treppenhaus aus gesehen linken Wohnungen wurde der bestehende WC-Raum an der Treppenhauswand durch einen innen liegenden separaten Duschraum ergänzt. Im Gegensatz dazu verfügen die rechten Wohnungen über eine hofseitig angeordnete Nasszelle mit Dusche und WC.
In allen Wohnungen der Regelgeschosse sind die Küchen nicht nur über den Korridor erschlossen, sondern auch über die strassenseitigen Zimmer.
Die Waschmaschinen- und Tumbler sind in die Schränke im Korridor integriert. Im Gegensatz zu den Wohnungen der Regelgeschosse sind in den Dachwohnungen strassenseitig keine Raumeinteilungen vorhanden. Die Innentreppen zum Dach-austritt bilden zusammen mit den Staketen und Schränken eine rückwärtige Raumzone des Wohn- und Essraumes. Beide Dachwohnungen verfügen über einen Teil der begehbaren Dachzinne, welche durch eine gemeinsame Pergola aufgewertet wird.
Die zwei im bestehenden Mauerwerk verankerten, nicht abgestützten Balkonkonstruktionen werten sowohl die Wohnungen der drei Regelgeschosse als auch den Innenhof auf. Da die Kellerräume unter dem Durchgang aufgrund der Gewölbe zu niedrig waren, und das Absenken der Bodenplatte aus statischen Gründen nicht möglich war, wurde der Boden im Bereich des Durchgangs durch eine wesentlich schlankere Betonkonstruktion mit Gussasphaltbelag ersetzt.
Die Gewerberäumlichkeiten im Erdgeschoss waren bisher in einen hof- und strassenseitigen Bereich unterteilt und ausschliesslich von der Strasse her erschlossen. Stattdessen ist das Gewerbe nun ein durchgestreckter Raum, der sowohl über das Treppenhaus als auch strassenseitig zugänglich ist.
Der Umbau ist auf der Webseite der Denkmalpflege Zürich unter "Gute Beispiele" dokumentiert: https://kurzlink.ch/vupf
- Ano
- 2024
- Cliente
- Family Immobilien AG

















