Umbau REFH Im Klösterli 70
Die Wohnsiedlung “Im Klösterli“ wurde 1937 vom Architekten Erhard Gull, dem jüngsten Sohn des Architekten und ehemaligen Stadtbaumeisters Gustav Gull, in Anlehnung an das Gartenstadtmodell errichtet. Sie ist die einzige Eigentums-Einfamilienhaussiedlung aus der Zeit vor dem Zweiten Weltkrieg.
Die Siedlung liegt auf einem leicht nach Osten abfallenden Geländer in Zürich-Fluntern. Das dreieckige Siedlungsgebiet wird im Westen vom Klosterweg, im Südosten von der Zürichbergstrasse begrenzt. Die 27 Doppelhäuser sind über eine kammförmige Struktur aus Strassen und Zugangswegen erschlossen.
Bei der Wohnsiedlung “Im Klösterli“ handelt es sich um eine für Zürich typologisch einmalige Siedlung mit versetzten parallelen Häuserpaaren unter markanten Pultdächern. Ist die einzige reine Pultdachsiedlung in Zürich. Alle Häuser sind nach Süden ausgerichtet, die Bauabstände sind sorgfältig geplant. Die Architektur zeichnet sich durch betonte Einfachheit mit grossflächigen Südfassaden und charakteristischen Balken der Dachuntersicht aus.
Der Gesamteindruck der Siedlung steht in der Tradition des Neuen Bauens. Die Häuser sind in Eisenbetonbauweise ausgeführt. Der sachliche Ausdruck und die Ablesbarkeit der Raumfunktionen an den Fassaden sind Ausdruck einer modernen Baugesinnung, die durch einzelne traditionelle Stilelemente (Dachsparren, Jalousieläden) ergänzt wird und bereits formale Merkmale der 1940er-Jahre vorweg nimmt.
Die Schutzverordnung wurde im Jahr 2006 rechtskräftig.
Das Grundstück des Hauses Nr. 70 liegt an der Zürichbergstrasse und konnte durch einen Parkplatz, der sich zurückhaltend in de Umgebung einfügt, aufgewertet werden. Sowohl in der Umgebung als auch im Innern des Gebäudes wurden einige Umbauten aus den 70-Jahren abgebrochen.
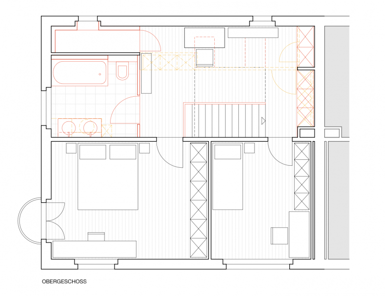
Im Obergeschoss wurde der Abstellraum aufgehoben, so dass eine grosszügige Diele entstand. Diese wird über 2 Dachflächenfenster zusätzlich belichtet.
Ein einfaches Materialkonzept mit Eichenparkett in den Zimmer und keramischen Platten in den Nasszellen, dem Eingangsraum und in der Küche unterstreichen die schlichte Architektur des Bestandes.
- Ano
- 2015







