House ER
Progetto per una nuova abitazione singola nella campagna Veneta. Le forme del volume architettonico nascono dallo studio e dalla sintesi delle abitazioni tipiche del contesto, caratterizzato da abitazioni su due piani con tetto a due falde.
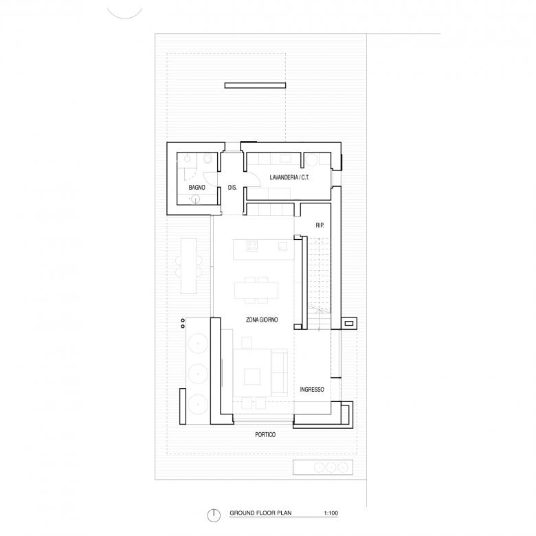
La casa si compone di un volume estremamente semplice, coronato da una copertura a due falde sul quale si attaccano delle solette a sbalzo in calcestruzzo su tutti e quattro i lati. Gli elementi in calcestruzzo, hanno una superficie increspata data dal disegno dei pannelli in osb posizionati nelle casseforme al momento del getto in opera e generano i portici della casa. All’interno lo stesso materiale è stato ripreso nel muro e parapetto della scala.
Il pavimento della zona giorno è una micro-veneziana grigia in continuità con i toni della casa. La scala in legno viene illuminata da un grande lucernario posto sopra di essa.
- Ano
- 2021













