Le Ticle, Théâtre du Jura
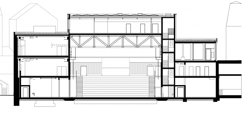
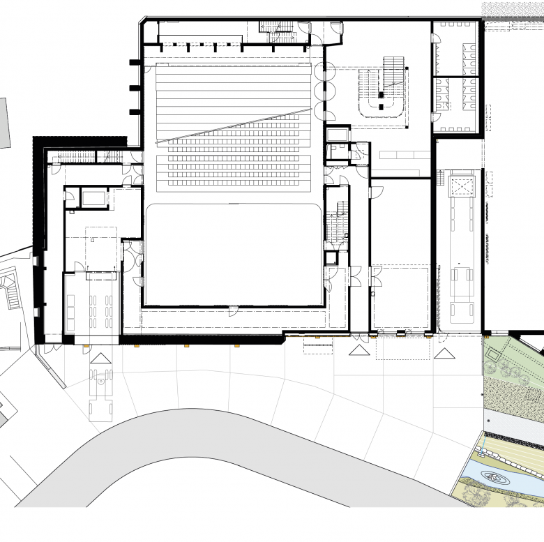
Das neue Jurassische Kantonstheater verknüpft die Überbauung mit der auf der Hügelkuppe gelegenen Altstadt. Es wird als kompakter Baukörper in die bestehende Topografie und hinter die erhaltene Fassade der alten Brauerei eingepasst. Der Publikumseingang erfolgt über die hangseitige Route de Bâle und den neuen Theaterplatz. Die dreiseitig verglaste Eingangshalle fungiert als Erweiterung des Stadtraumes in Richtung vom Foyer, das sich kaskadenartig rund um die Haupttreppe nach unten über zwei weiteren Ebenen entwickelt. Diese Geschosse ermöglichen den Zugang zum grossen Saal, auf Höhe der oberen, bzw. der unteren Ebene der Teleskoptribüne. Diese lässt sich nach Bedarf nach hinten in eine Wandnische einfahren und macht aus dem bestuhlten Theatersaal für 450 Zuschauer einen ebenerdigen Veranstaltungsraum für 840 Besucher. Dem Black- box-Konzept entsprechend ist die gesamte Theatertechnik über eine vollflächig begehbare Gitterdecke frei bespielbar. Die Saal-Akustik ist primär über die Wandoberflächen aus Wellbeton gewährleistet. Bewegliche Vorhangsflächen sowie Reflektionspaneele ermöglichen die Feineinstellung auf die Bedürfnisse der einzelnen Veranstaltungen. Die Bühne und ihre Nebenbereiche werden stufenlos über die untere Rue de la Brasserie angeliefert. Das gesamte Gebäudekonzept entwickelt sich aus den topografischen Verhältnissen und prägt die dicht bebaute Hügelflanke der Altstadt.
- Ano
- 2021
- Bauherrschaft
- Fondation Théâtre du Jura
- Totalunternehmer
- HRS Real Estate SA, St.Sulpice
- Bühnentechnik
- Artsceno, Genève
- Bauingenieur
- SD Ingénierie Jura SA, Delémont
- HLKS-Ingenieur, Bauphysik
- Planair SA, Delémont
- Elektroingenieur
- open-ing SA, Givisiez
- Kunst am Bau
- Schlaepfer-Capt-Rigoli, Lausanne
- Aussenbeleuchtung
- Lumière électrique, Lausanne
- Bauakustik
- D'Silence acoustique, Lausanne
- Brandschutz, Sicherheit
- Holliger Consult, Ipsach



















