Bâtiment d'instruction et halles «CIC» place d’armes
1er prix
Le bâtiment d’instruction du nouveau «centre d’instruction au combat» se positionne en terminaison d’un cordon boisé, à l’est du chemin piétonnier qui dessert le haut des casernes existantes. Il se place sur le parcours des soldats et marque clairement un point d’articulation dans le lieu par son implantation, une espèce de repère dans le site. Le projet s’exprime à travers une volumétrie pure et abstraite, en étant composé d’un socle en béton armé partiellement enterré, sur lequel est posée, en décalage, une «boîte» recouverte d’une résille métallique formant le porte-à-faux d’entrée.
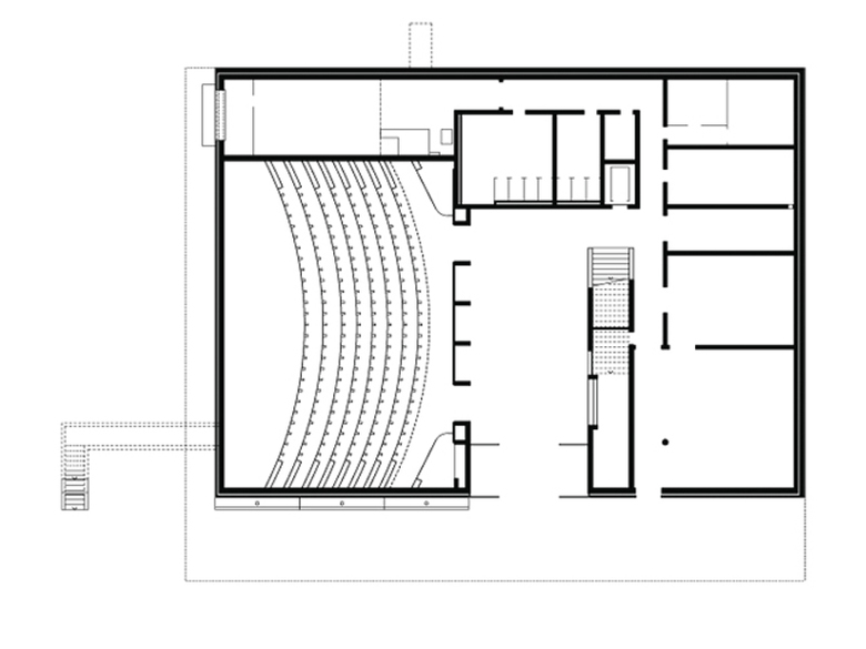
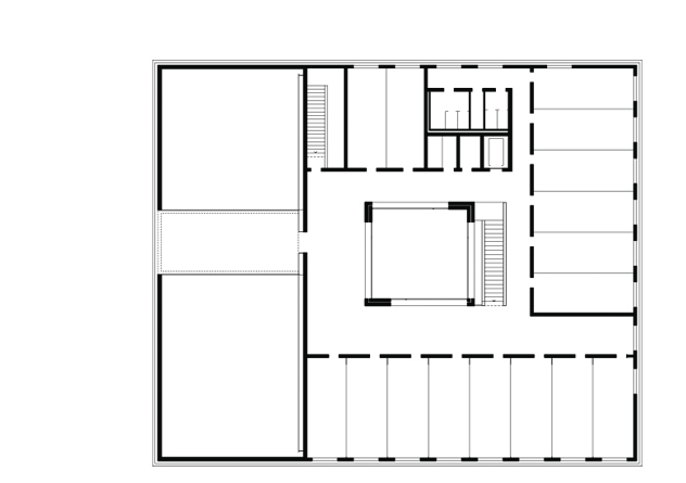
Au rez-de-chaussée un grand foyer ouvert sur l’extérieur distribue d’un côté la montée dans les étages et, de l’autre, l’auditoire de deux-cents places. Ce dernier est conçu comme un volume simple en béton, avec une feuille de plâtre qui se plie pour façonner, dans un mouvement unique, le faux plafond acoustique et la surface de projection. La disposition polychromatique des sièges de la salle a été conçue par l’artiste Daniel Schlaepfer. Les deux étages supérieurs sont articulés autour d’un patio intérieur à ciel ouvert et accueillent l’ensemble des locaux d’instruction et des bureaux.
Le projet se basant sur une résolution structurelle faisant appel à des voiles en béton armé, le matériau est laissé apparent dans tout le bâtiment. Les quelques éléments de second œuvre adoptent comme principe fondateur le fait d’être toujours «rapportés» sur la surface cimentée.
La conception de la façade met en rapport des éléments verticaux, sous la forme de tôles en aluminium perforé ondulant légèrement, avec la frondaison des arbres. Face à une demande programmatique complexe, impliquant des ouvertures disposées au gré des fonctions, cette peau devient l’élément unitaire expressif. La fonction de protection solaire vient s’ajouter à la cohérence architecturale.
- Ano
- 2008
- Cliente
- armasuisse constructions









