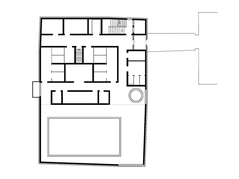
Piscine thérapeutique
Le parti architectural est de créer un volume simple dont les arêtes sont légèrement biaisées en plan et en élévation, afin qu’il s’intègre de manière harmonieuse aux différents types de bâtiments présents sur le lieu. À la manière d’une sculpture, le volume se pose dans le magnifique paysage jurassien du Val-de-Ruz. La totale planéité de sa peau de verre et de cuivre lui confère une expression contemporaine, la passerelle de liaison étant conçue comme une excroissance du volume principal, dont elle reprend la matérialité.
Le cuivre prépatiné est choisi en raison de sa couleur très proche de l’environnement végétal du territoire: des conifères sur les crêtes du Jura et des surfaces agricoles dans la vallée. Le traitement du prépatinage par projection d’acide, permet d’offrir une finition «vivante» au cuivre, et d’amorcer un vieillissement non uniforme, se rapprochant ainsi du caractère paysager de ce lieu d’une qualité spatiale remarquable.
La piscine, réalisée sur une double hauteur, se met en rapport avec le paysage par quelques grandes fenêtres formant des cadrages, par des ouvertures sur le ciel et par des fenêtres intérieures en relation avec l’étage. L’utilisation d’un béton teinté et calepiné précisément confère à l’espace intérieur de cette pièce d’eau, une matérialité et une texture particulière.
- Ano
- 2007
- Cliente
- Hopital Neuchatelois









