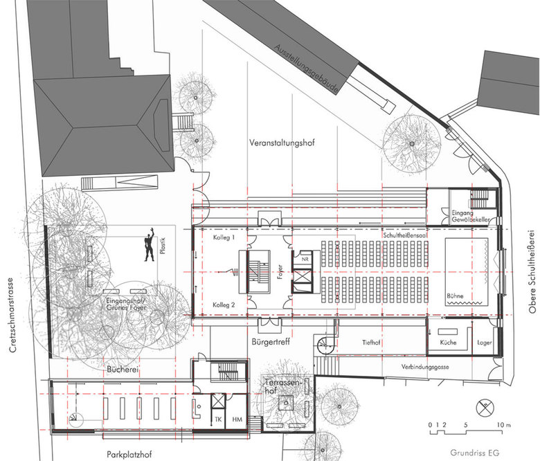
Bürgerzentrum Frankfurter Hof
Planungsaufgabe war, den Frankfurter Hof, ehemals Schultheisserei, Poststation und Gaststätte, als denkmalgeschützte und größte Hofreite der Gemeinde zu einem Bürgerzentrum umzubauen.
In den Konturen der baufälligen Zehntscheune entstand mit großem Saal, Gruppenräumen und Jugendkeller das neue zentrale Veranstaltungsgebäude, das sich zum Wirtschaftshof öffnet und diesen als Außen- und Festraum einbezieht.
Umgeben von historischem Herrenhaus, Saalbau und schlankem Bibliotheksneubau erhält der platanenbestandene Eingangshof seine räumliche Fassung und wird zum grünen Foyer der Gesamtanlage.
Realisierungswettbewerb
1991, ein 1.Preis
Wettbewerbsbeauftragung
TTN
Aufgabe
Bürgerzentrum und Bücherei ‘Frankfurter Hof’
Baukosten
Eur 6,5 Mio.
LPH
1-9
Realisierung
2002-03
Auftraggeber
Gemeinde Sulzbach Ts., Der Gemeindevorstand
- Ano
- 2003
- Project Status
- Built
- Equipa
- Klaus Trojan, Verena Trojan, Volker IHm, Harald Neu
- Statiker
- Bollinger&Grohmann






