Auszugshaus im Garten
Was machen, wenn in einem Einfamilienhaus plötzlich alle Kinder erwachsen sind und voraussichtlich bleiben wollen? Die Einen stocken auf, die Anderen bauen an. Oder man macht’s wie am Bauernhof, wo ein Auszugshaus dazu gebaut wird, in das sich die ältere Generation zurückziehen kann. Das war auch hier die Lösung. Zum Familienbungalow wurde ein neues Holzhaus auf das große Grundstück dazugestellt.
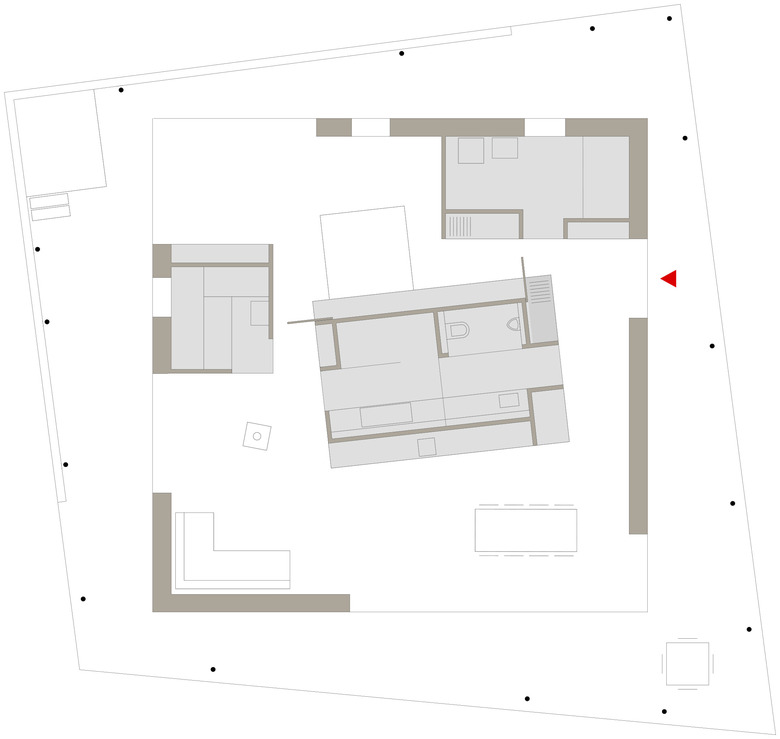
Der elegante Pavillon ist maßgeschneidert auf die Bedürfnisse der Eltern: Zimmer in diesem Sinn gibt es nicht, schon eher ist das ganze ein kleines, offen geschnittenes Loft mit verschiedenen Zonen. Ein Sanitärblock in der Mitte, zwei frei angeordnete Nebenräume und Schiebeelemente erlauben Settings nach Lust und Laune. Raumhohe Verglasungen schaffen einen Rundumblick in den Garten. Das weit auskragende Dach schützt vor Sonne und Regen. Barrierefreiheit versteht sich von selbst.
Das Haus wurde zur Gänze in höchster Präzision vorgefertigt. Wände und Decken bestehen aus KLH-Platten. Die Oberflächen wurden innen weiß, außen schwarz lasiert. Die Fenster sind aus Lärche. Das weit auskragende Dach bietet einen geschützten Außenbereich und dient dem konstruktiven Holzschutz. Keller gibt es übrigens keinen.
- 年份
- 2014
- Project Status
- 已建造



