Hof "Toni zu Moos"
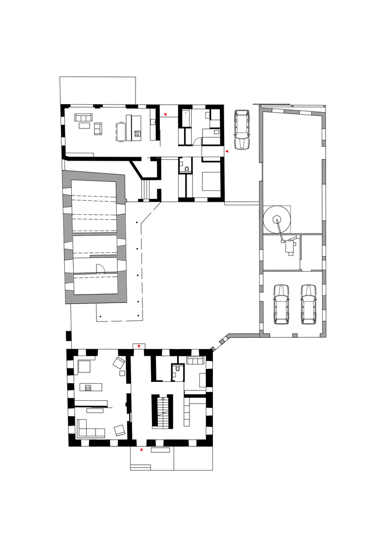
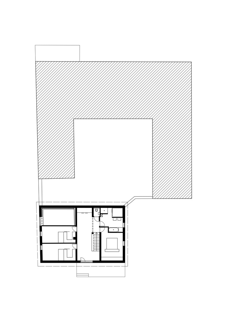
Hier in Natternbach wurde ein bewusster Weg gewählt. Der bestehende „Hausruckhof“ wurde in intensiver Zusammenarbeit von Architekten und Bauherrn akribisch analysiert. Stärken und Schwächen wurden abgewogen, das Potential war schnell klar. Ein Zusammenleben der Generationen ohne weiteres räumlich machbar. Es wurde getüftelt. Wo nötig wurde hineingeschnitten, umorganisiert und adaptiert. Heute leben hier 5 Personen in 3 Generationen unter einem Dach.
Das Ergebnis ist modellhaft. Anstatt die alte Substanz brach liegen zu lassen und gleichzeitig unwiederbringliche, wertvolle Agrarfläche zu versiegeln wird der vorhandene Raum neu gedacht. Im renovierten Hausstock leben nun die Jungen. Im ehemaligen Stadl und der Garage die Alten. Der Stall wird zur neuen Garage mit Werkstatt und Hackgutheizung. Der einstige Heizungsraum zur Fitness-Sauna. Nettes Detail am Rande: Die Baustelle war von Außen kaum wahrnehmbar. Für die Nachbarn war plötzlich ein Wohnzimmer in der Garage.









