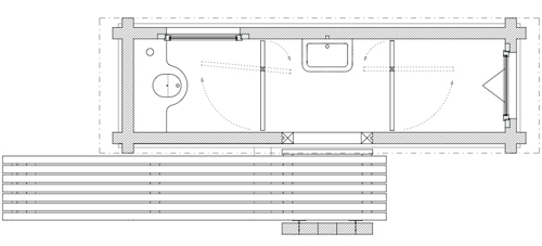
Neubau Sanitärhaus Bifertenhütte 2482 M.ü.M
Aufgrund der gestiegenen Besucherzahlen sowie der heutigen Komfortansprüche wurde für die Bifertenhütte des Akademischen Alpenclubs Basel 2007 eine neue Sanitäranlage erstellt. Trotz der “einfachen Nutzung“ sollte ein nachhaltiges und attraktives Gebäude entstehen. Zudem war eine günstige und innovative Sanitärtechnik gefragt. Für die Konstruktion des Gebäudes berief man sich auf die Tradition des Tales und erstellte den Bau als Strickbau in Fichte. Die Schwingtüren im Inneren gehen auf Details aus der Region Surselva zurück.



