Umbau und Aufstockung Einfamilienhaus
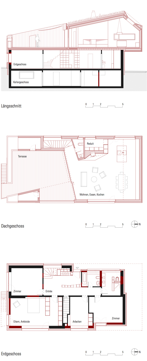
Das Haus aus den 60er Jahren wurde mit einer Dachaufstockung den Anforderungen der neuen Eigentümer angepasst. Der Aufbau in Holzelementbauweise bietet einen grossen Wohn-, Ess- und Kochbereich sowie eine vor Einsicht geschützte Terrasse. Im Gegensatz zum Bestand ist das Haus nun giebelständig. Das neue Volumen ist asymmetrisch und greift über die Fassadengestaltung bis hinunter in den Bestand. Die Kammern des Erdgeschosses wurden zu Schlafräumen und Entrée umgebaut.
Lignum, Broschüre 13, 03/2015
Umbauen und Renovieren, 01/2013
Umbauen und Renovieren, 03/2011
- 年份
- 2010










