Zwei Terrassenhäuser in Erlinsbach
Brühlstrasse 73 / 75, Erlinsbach, 瑞士
照片 © Goran Potkonjak www.goranpotkonjak.com
照片 © Goran Potkonjak www.goranpotkonjak.com
照片 © Goran Potkonjak www.goranpotkonjak.com
照片 © Goran Potkonjak www.goranpotkonjak.com
照片 © Goran Potkonjak www.goranpotkonjak.com
照片 © Goran Potkonjak www.goranpotkonjak.com
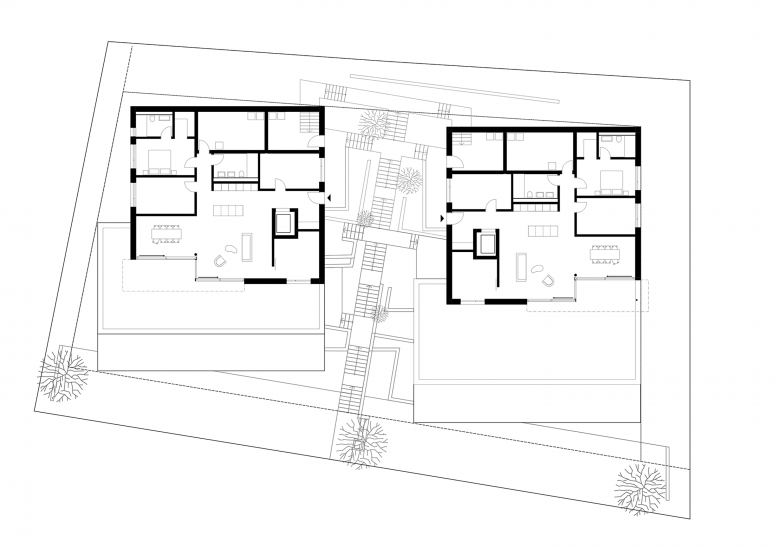
图纸 © Husistein & Partner AG
图纸 © Husistein & Partner AG
-
年份
-
2024
-
Project Status
-
已建造
-
客户
-
Eglin Immobilien AG
-
Baumanagement
-
B&B Baurealisierung GmbH
-
Bauingenieur
-
Schüpbach Ingenieure AG
-
HLKS-Planer
-
Felix & Co. AG Haus- und Energietechnik
-
Elektroplaner
-
Eglin Services AG
-
Bauphysik / Akustik
-
Steigmeier Akustik + Bauphysik GmbH
-
Geologe
-
Dr. Heinrich Jäckli AG
-
Umgebungsplanung
-
Lehnert AG
Siedlungsüberbauung in Wohlenschwil
Wohlenschwil, 瑞士
Ersatzneubau Mehrfamilienhaus
Aarau, 瑞士
Arealüberbauung in Lenzburg
Lenzburg, 瑞士
Mehrfamilienhaus in Aarau mit 8 Wohnungen
Aarau, 瑞士
Zwei Mehrfamilienhäuser in Ebnat-Kappel
Ebnat-Kappel, 瑞士