Taiwan Glass
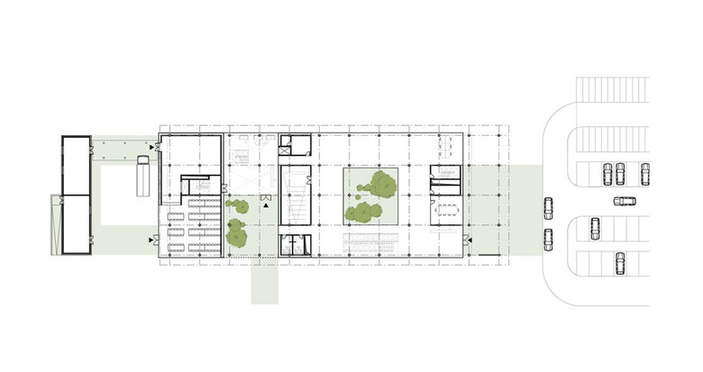
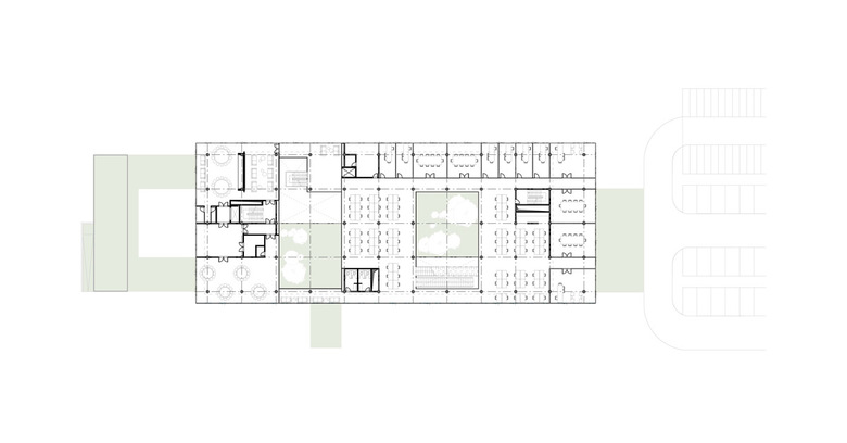
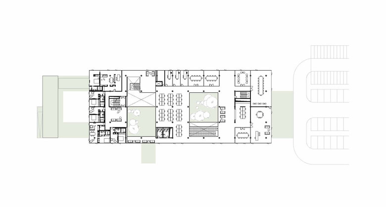
Für den neuen Firmensitz für Taiwans größten Glashersteller Taiwan Glass in Fujian (China), wurde ein 4.200 m² großes Bürogebäude, vom Kunden beauftragt. Es wurde ein dreistöckiges Gebäude errichtet, in dem die Büros, die Verwaltung, der Ausstellungsraum, die Restaurants sowie die Wohnungen für die Geschäftsführer des Unternehmens untergebracht sind, sowie verbundene Gebäude wie das Torhaus und ein Betriebsgebäude. Der allgemeine Grundriss des Gebäudes ist um zwei große Innenhöfe herum strukturiert, die viel Tageslicht zuließen und ein sehr komfortables Arbeitsumfeld schaffen. Zusammen mit Taiwan Glass wurde ein teilweise beschichtetes Low-E-Glas entwickelt, das speziell für die Fassade des neuen Bürogebäudes in Fujian hergestellt wurde. Die beschichteten Bereiche des Glases sind von außen hochglanzpoliert, bleiben jedoch von innen transparent. Das Ergebnis ist eine Glasfassade, die den erforderlichen Schutz vor Sonne und Hitze bietet und ein ästhetisch interessantes Erscheinungsbild erzeugt.
- 年份
- 2011
- Project Status
- 已建造















