睡眠研究所 · Arch民宿 | 多么工作室Atelier d'More
Huangmuchang Village, 中国
Project Name: Sleeping Lab·Arch
Office Name: Atelier d'More
Office Website: www.d-more.cn
Contact email: [email protected]
Firm Location: Shanghai, China
-
Completion Year: 2022
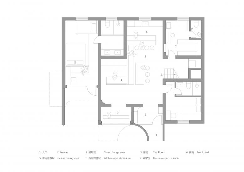
Gross Built Area (m2/ ft2): 249㎡
Project Location:Beijing, China
Program / Use / Building Function: Hotel
-
Lead Architects: Wei Wang, Le Sheng
Photo Credits: Atelier d’More
- 年份
- 2022


























