Umbau und Umnutzung Kasernenstrasse

Kasernenstrasse 19 + 21, 3013 Bern, 瑞士
可视化 © Rykart Architekten

Das Verwaltungsgebäude an der Kasernenstrasse 19/21 entstand in den Jahren 1966/67. Geplant ist die Transformation zu einem Wohngebäude. Für die Umnutzung wird das Gebäude bis auf die Rohbaustruktur zurückgebaut.

Innovative, massgeschneiderte Wohnungsgrundrisse ermöglichen die effiziente Umnutzung unter Erhalt der Bestandesstruktur. Der Wohnungsmix beinhaltet zukünftig 89 Wohnungen vom 1 ½-Zimmerstudio bis hin zur 4 ½-Zimmerwohnung. Sieben Ateliers im Erdgeschoss ergänzen die Wohnnutzung. Rund 85% der Wohnungen sind eingeschossig, 15% der Wohnungen werden zweigeschossig als Townhouses und Duplex konzipiert. Durch neue, vorgelagerte Balkone erhalten die Wohnungen private Aussenräume.

Der durchdachte Umgang mit dem baulichen Bestand ist ein wichtiger Teil nachhaltiger Architekturlösungen. Mit der Adaption und Transformation des bestehenden Gebäudes kann ein relevanter Beitrag zum Klimaschutz geleistet werden.

可视化 © Rykart Architekten
图纸 © Rykart Architekten
图纸 © Rykart Architekten
可视化 © Rykart Architekten
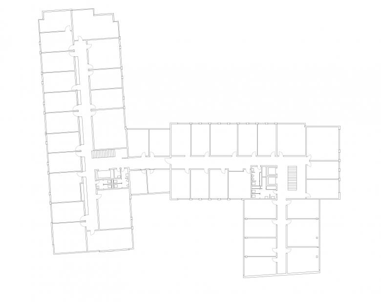
Grundriss Bürogebäude
图纸 © Rykart Architekten
Grundriss Wohnungsbau
图纸 © Rykart Architekten
Schemaschnitt
图纸 © Rykart Architekten
年份
2026
客户
MEG Kasernenstrasse 19/21 Bern
团队
Landschaftsarchitektur: grünwerk1 landschaftsarchitekten ag Olten / Bauingenieur:in: Nydegger + Finger AG Bern / Elektroplanung: Brücker Ingenieure AG Bern / HLKS-Planung: Ingenieurbüro IEM AG Thun / Bauphysik: Grolimund + Partner AG Bern / Brandschutz: SafeT Swiss AG Bern / Umweltingenieur: Geotechnisches Institut AG Bern
Studienauftrag
2021

以下出品方的其他项目 Rykart Architekten AG 

Einbau Geschäftsstelle Raiffeisenbank in Köniz
Köniz, 瑞士
Planung Studie Städtebau Altstadt Aarberg
Aarberg, 瑞士
Wettbewerb Aspi
Bellmund, 瑞士
Lindenmatt West
Bolligen, 瑞士
Doppelbasisstufe Scheibenstrasse
Bern, 瑞士