Zwicky Süd
Das Zwickyareal wandelt sich vom Areal zum Quartier. Hier entstehen Bauten mit unterschiedlichen Nutzungsmöglichkeiten: für Büros, fürs Gewerbe oder fürs Wohnen. Schlank und luftig, gross und bullig, oder vielleicht auch flach und weit? Ausgehend von solchen fundamentalen, körperlichen Eigenschaften haben wir drei Archetypen ausgewählt: die schlanke Scheibe, der massive Block, die flache Halle.
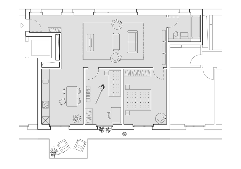
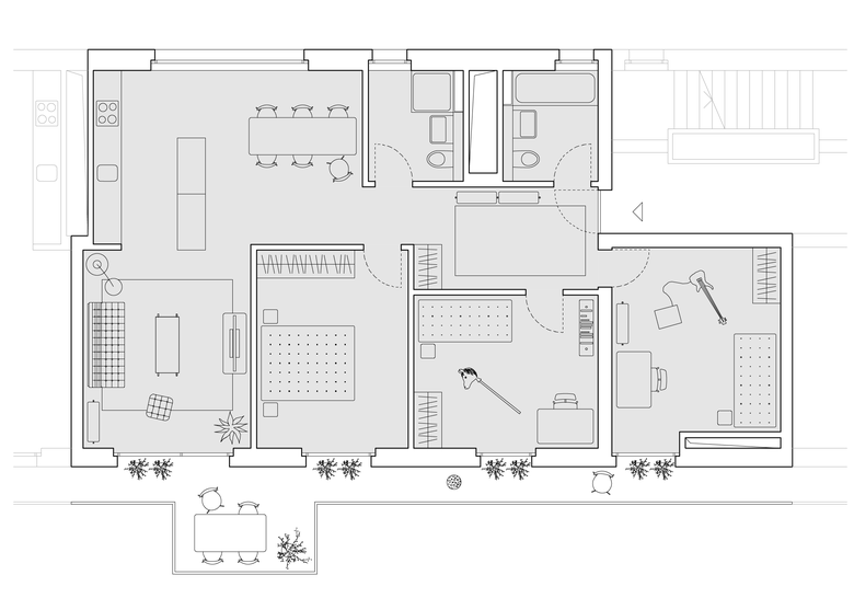
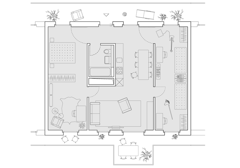
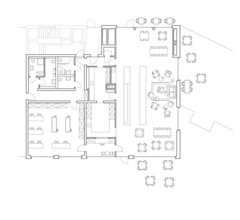
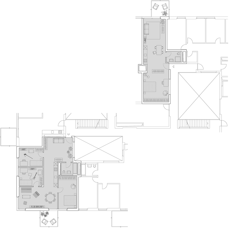
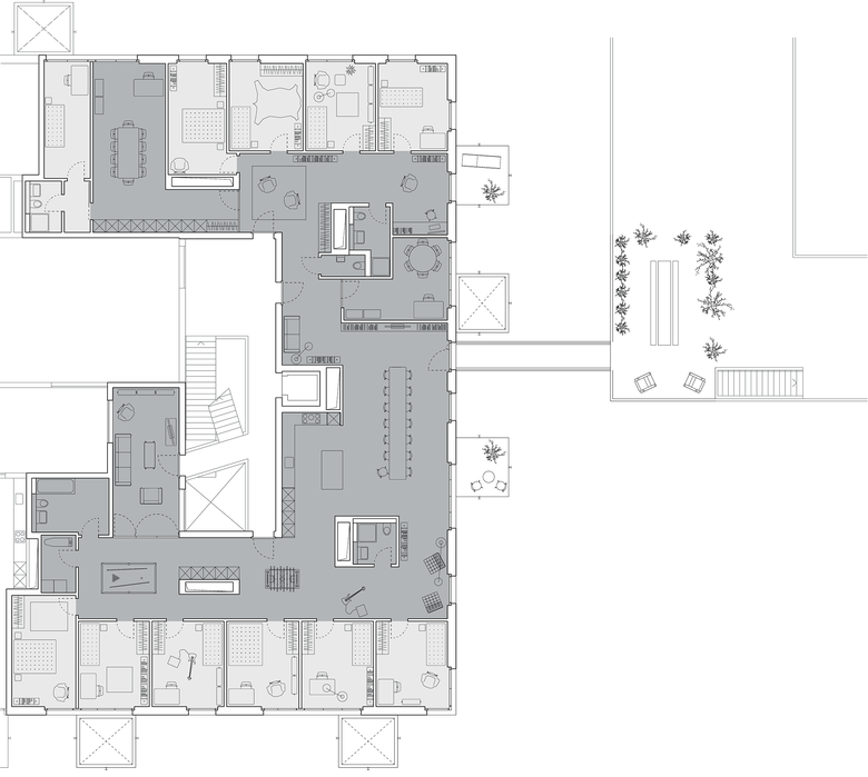
Kein Industrieareal ohne Hallen: Sie bieten grosse Erdgeschossflächen, wo produziert, gelagert, ausgestellt und verkauft wird. Sie lassen sich aber auch bewohnen. Schmale, lange Hofhäuser verbinden den Charme eines Reihenhauses mit der Flexibilität von urbanen Lofts.
Die schlanken Scheiben mit ihren langgezogenen Terrassen und Laubengängen gleichen einem Hotel. Sie sind hochinstalliert und fein unterteilbar: Locandazimmer, Zweizimmerwohnungen, Ateliers oder Familienmaisonetten sind hier mühelos organisierbar.
Die fetten Blocks mit ihren inneren Gärten sind vom Bürobau her vertraut. Effizient und flexibel können sie eine Schule, einen Cluster von KMUs aber auch diverse Wohntypologien beherbergen. Balkone werden aussen angehängt oder reichen vom Austritt bis zur Brückenterrasse, welche zum benachbarten Gebäude hinüberspannt.
- 年份
- 2016
- 客户
- Teilbereich A (Häuser 4, 5 und 6) Bau- und Wohngenossenschaft Kraftwerk1, Zürich Bistro Hotel ZwiBack: Stiftung Altried, Zentrum für Menschen mit Behinderung, Zürich Teilbereich B1 (Haus 2) Anlagestiftung Turidomus (Pensimo Management AG), Zürich Teilbereich B2 (Haus 3) Anlagestiftung Adimora (Pensimo Management AG), Zürich Teilbereich C (Haus 1) Anlagestiftung Swiss Life (Swiss Life AG)
- 团队
- Martin Arnold, Sarah Birchler, Aline Brun, Savvas Ciriacidis, Nuno Correia, Ladina Esslinger, Dominik Joho, Marco Kistler, Amadeo Linke, Liliana Miguel, Laurent Nicolet, Zlatina Paneva, Lukasz Pawlicki, Marina Peneva, Shohre Shafie, Valentina Sieber, Matthew Tovstiga, Thai Tran, Felipe Valadares, Schneider Studer Primas Architekten GmbH Ivo Hasler (Projektleitung), Elisabeth Zissis (Stv. Projektleitung) Francisco Amado
- Landschaftsarchitekt
- Lorenz Eugster Landschaftsarchitektur und Städtebau GmbH, Zürich
- Bauingenieur
- Schällibaum AG, Ingenieure und Architekten, Herisau
- Bauingenieur Vorprojekt
- Conzett Bronzini Gartmann, Chur
- HLSE
- Amstein + Walthert AG, St.Gallen/Zürich
- Kälteplanung ZwiBack
- Rohr-KälteConsulting, Watt
- Bauphysik
- Kopitsis Bauphysik AG, Wohlen, Ernst Basler + Partner, Zürich (Lärmschutz)
- Akustik ZwiBack
- Grolimund + Partner AG, Aarau
- Fassadenplanung
- Atelier P3, Zürich, Fiorio Fassadentechnik GmbH, Zuzwil
- Gastroplanung ZwiBack
- planbar ag, Zürich
- Signaletik
- anstalt.ch, Zürich
- Signaletik ZwiBack
- Signaletik ZwiBack
- Projektentwicklung
- Senn Resources AG, St.Gallen mit Wüest & Partner, Zürich
- Totalunternehmung
- Senn Resources AG, St.Gallen
- Bauleitung ZwiBack
- Bauleitung ZwiBack























