Deutsche Schule Genf – Campus Süd
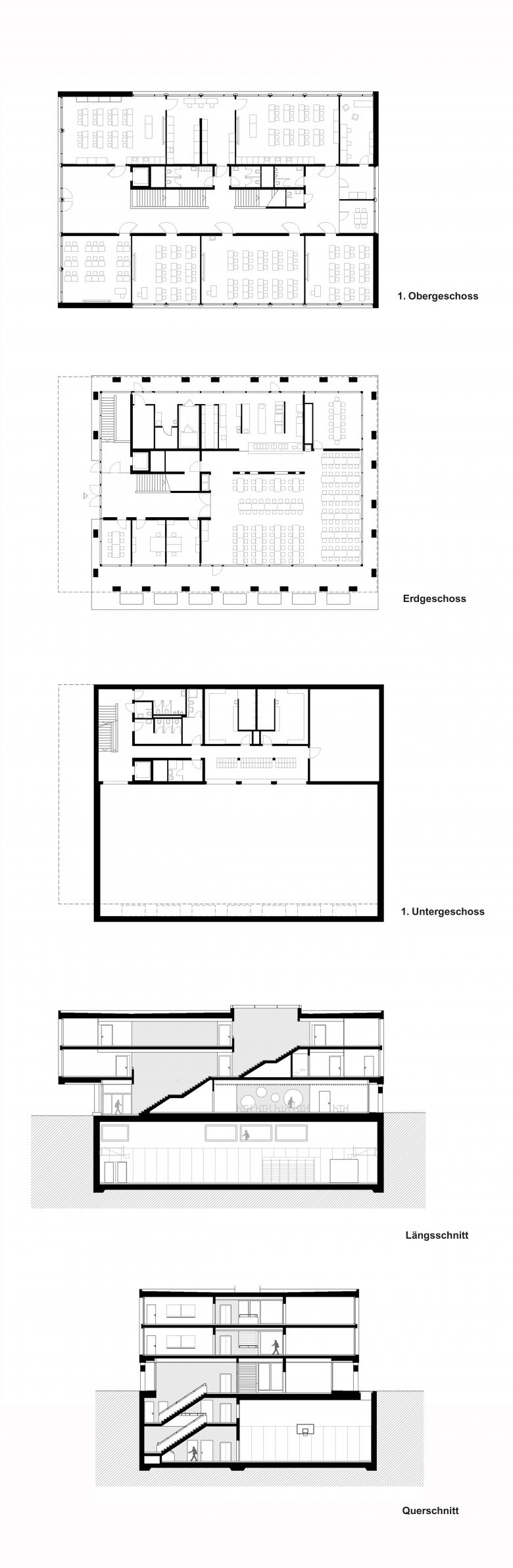
Die Deutsche Schule Genf ist Teil der deutschen Auslandsschulen und führt vom Kindergarten bis zum Abitur. Im Herbst 2007 konnte der Hauptbau als erstes Gebäude der Schule eröffnet werden. Die jetzt im 2022 eröffnete Erweiterung – Campus Süd – schliesst den ursprünglichen Quartierplan ab und bietet nun bis zu 500 Schülern eine Ausbildungsstätte. Das neue Gebäude tritt als einfaches, rechteckiges Volumen in Erscheinung. Eine Fachwerkstatik in Form kräftiger Diagonalstützen nimmt das bereits im Hauptbau prägnante Strukturprinzip auf, bildet zusammen mit der transparenten Fassade ein Maximum an Offenheit und entspricht so der gewünschten „kulturellen Aussendarstellung“.
Die Stadt Vernier liegt auf halbem Weg zwischen Genf und Frankreich und ist Teil des Großraums Genf. In der Nähe des internationalen Flughafens befinden sich ein grosser Dienstleistungssektor, sowie ein erneuertes Industriegebiet. Die zahlreichen privaten und öffentlichen Infrastruktureinrichtungen machen die Gemeinde auch zu einer attraktiven Wohngegend. Die DSG liegt in diesem vielfältigen städtischen Umfeld, nahe dem städtischen Epizentrum, aber durchaus attraktiv in einer begrünten Umgebung. Als Bildungs- und Begegnungsstätte gemäß pädagogischer, integrativer und repräsentativer Bestrebungen konzipiert, soll die Architektur eine interkulturelle Schulidentität sekundieren. Der im 2002 erstellte Quartierplan ist durch die Erweiterung Campus Süd vervollständigt worden. Heute gruppieren sich der Neubau, das 2007 eröffnete Hauptgebäude, sowie der zusammen mit der Stadt Vernier im 2011 eröffnete Kindergarten um einen gemeinsamen öffentlichen Park. Ein Volumen von 13’000 m3 bietet im Campus Süd neu Platz für mehr als 200 Schüler.
Unter einen weiten Auskragung an der Route de Vernier befindet sich der Hauptzugang, von dort führen zwei separate Treppen in die Ober- und Untergeschosse. Die durch Oberlichter natürlich beleuchtete Sporthalle ist acht Meter in den Boden eingelassen. Im Untergeschoss befinden sich außerdem Umkleidekabinen, Lager- und Technikräume. Für einen ökologischen Energieverbrauch kommt eine Luft/Wasser Wärmepumpe gepaart mit einer Photovoltaikanlage zum Einsatz. Im Erdgeschoss ist eine Mensa mit eigener Produktionsküche untergebracht und in den zwei oberen Stockwerken befinden sich die acht Klassenzimmer der Oberstufe, sowie die Räume für den naturwissenschaftlichen Unterricht von Chemie und Physik. Für Offenheit und Transparenz im Innern sorgen Verglasungen und das Oberlicht über der Treppenkaskade. In Zusammenarbeit mit einer Farbgestalterin wurden die öffentlichen Bereiche durch verschiedene Farbtöne akzentuiert. Die im Hauptgebäude verwendeten Primärfarben Gelb, Rot und Blau wurden hier zu Orange, Mauve und Grün gemischt, welche unterschiedlich auf Türen, Wänden und Decken Anwendung finden.
Die rechteckige Grundrissfläche der Untergeschosse variiert in der Breite und Länge von der Fläche der Obergeschosse, und die vertikalen Lasten der Obergeschosse werden über einen Fachwerkträger in der Fassadenebene und auf einer Stahlbetonscheibe entlang der inneren Gebäudeachse über der Mensa abgefangen. Das Fachwerk setzt sich aus den geneigten Sichtbetonstützen der Fassade und zwei Stahlgurten zusammen, die in den Decken über EG und UG einbetoniert sind. Der Träger ist geschosshoch und überträgt die Gebäudelasten entlang der Fassadenebene in Gebäudelängsrichtung über der Turnhalle auf eine Spannweite von 30 m. Das Tragwerk trägt so nicht nur die Lasten ab, sondern hängt auch die Decke der Sporthalle auf. Die innere Stahlbetonscheibe zur Abfangung der Gebäudelasten über der Turnhalle erstreckt sich vom Erdgeschoss bis ins 2. Obergeschoss und ist als gelochte Sichtbetonscheibe mit einer Spannweite von 30 m konzipiert. Die zwei Obergeschosse kragen bei der südlichen Fassade ca. 4.10 m über dem Erdgeschoss aus. Die Übertragung der vertikalen Lasten wird dort mittels Sichtbetonscheiben in den Fassadenebenen des 1. und 2. Obergeschosses gewährleistet. Die Form der Stützen greift das Strukturprinzip des bestehenden Gebäudes auf und zusammen mit der signifikanten Gebäudeauskragung entsteht eine nachhaltige, gemeinsame Identität rund um den zentralen, begrünten Platz.
The German School Geneva is part of the German Schools abroad and leads from kindergarten to A-levels. In autumn 2007, the main building was opened as the school's first building. The extension now opening in march 2022 - Campus South - completes the original master plan. The new building appears as a simple, rectangular volume. A truss structure in the form of strong diagonal pillars resume the structural principle already present in the main building and, together with the metal/glass façade, forms a maximum of transparency to the desired "cultural external presentation" of the school. The main entrance is located under a wide overhang on the Route de Vernier, followed by two separate staircases leading to the upper and lower floors. The sports hall, naturally illuminated by skylights, is eight metres underground. The ground floor includes a school canteen with its own production kitchen, and the two upper floors contain the secondary school and science classrooms. Interior windows and the skylight above the staircase cascade ensure openness and transparency inside, accentuating the different building zones in orange, mauve and green colors. An air/water heat pump paired with a photovoltaic system is used for ecological energy consumption.
- Jaar
- 2022
- Team
- Bauleitung: BLSA architectes à Carouge GE










