db - neu
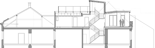
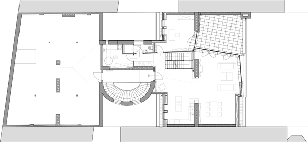
Beschränkungen der Bauordnung im dicht bebauten Gebiet belassen nur geringe Spielräume für die Planung eines Dachbodenausbaus. Und doch ist aus einem relativ kleinen Dachraum am Südtrakt eines Jugendstilhauses ein luftiger Wohnraum mit viel Licht und gerichteten Ausblick entstanden. Die Positionierung der Glasflächen lenkt die Blicke zum grün des Innenhofs und zur Weite Richtung Kahlenberg, die sich dem Besucher im Ausgang auf die obere Terrasse in seiner vollen Weite zeigt.
- Jaar
- 2007








