Junges Wohnen Nordbahnhof
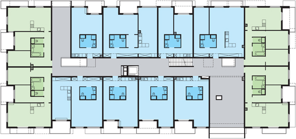
Wohnbau für junge Menschen muss unserer Meinung nach 3 Punkte erfüllen: er muss leistbar sein, flexibel auf geänderte Lebenssituationen reagieren können und großzügige Bereiche zur Kommunikation im innen- sowie Außenbereich bieten. Aufgrund der großen Trakttiefe schlagen wir an den langen Seiten der Blöcke einseitig belichtete Minimal-Wohnungen vor, die über eine großzügige Mittelgangerschließung (Kommunikationszone) angebunden werden - an den kurzen Seiten sehen wir zweiseitig über Eck belichtete Familienwohnungen vor. die Minimal-Wohnungen sind mit einer „intellegenten Wand“ zum gang ausgestattet, die Küche und Schrankbereich abdeckt. Die als Ein- oder Zweiraumwohnungen funktionierenden Wohnungen sind durch einen Funktionsblock (WC, Bad) gegliedert, um den sich gleichwertige Räume anordnen. Diese Räume können je nach Bedarf getrennt (Schrank, Vorhang, Leichtbauwand) werden und ändern sich so zu Zwei- bzw. Dreizimmerwohnungen, dabei sind aber alle Räume immer über den Vorraum begehbar.
- Jaar
- 2011






