Genossenschaftliche Wohnsiedlung in Ettingen
Die Bauparzelle ist Teil eines neu angelegten Wohnquartiers am westlichen Siedlungsrand von Ettingen. Auffallend ist das bis dato Fehlen identitätsstiftender Orte im Quartier, was unter anderem auf die vollständige, im Teilzonenplan verordnete „Neuanlegung“ der Topografie zurück zu führen ist. Die privaten und öffentlichen Aussenräume der bereits realisierten Baufelder weisen nur bedingt Qualitäten auf, welche über die pragmatische Funktionserfüllung wie Erschliessung, Grenzabstände oder wirtschaftliche Interessen hinaus gehen. Das Projekt verfolgt das Ziel, einen identitätsstiftenden Ort des gemeinschaftlichen Wohnens im Quartier zu schaffen, welcher erkennbare Aussenräume der Öffentlichkeit, Halböffentlichkeit sowie Privatheit besitzt.
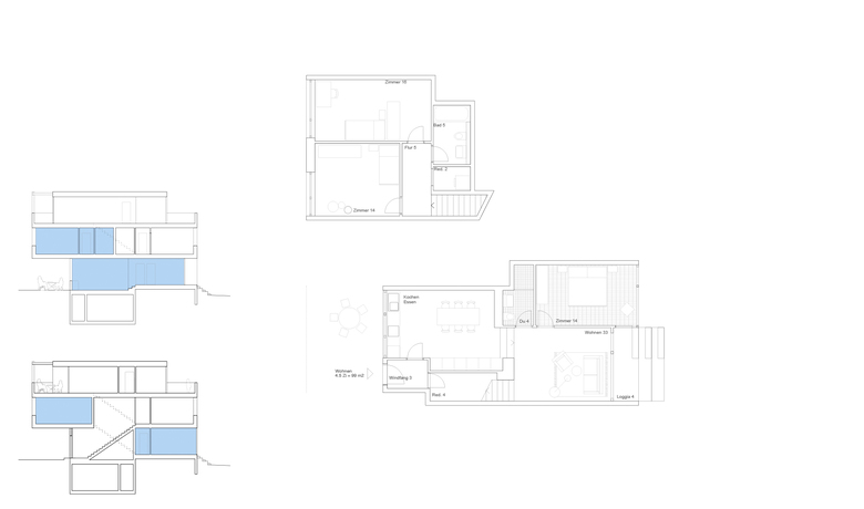
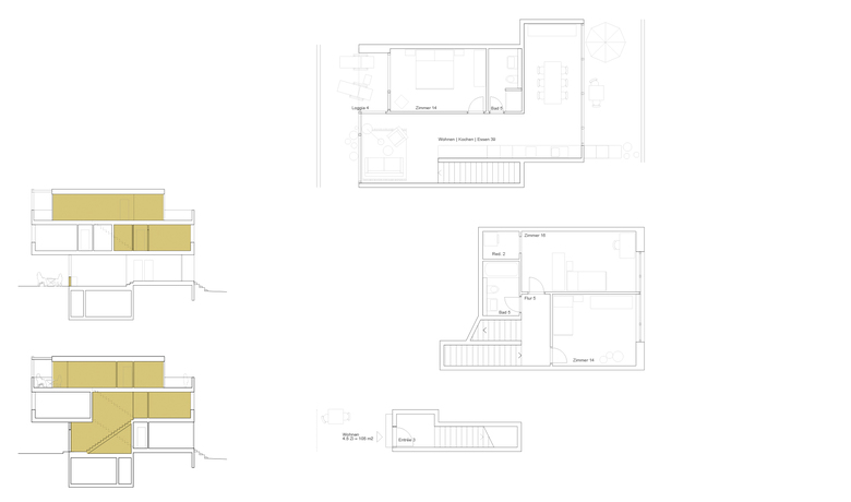
Zwei längliche Baukörper formulieren einen Hofraum, welcher das Zentrum der Siedlung bildet. Der Platz orientiert sich zum westlich angrenzenden Bachraum. Der neu angelegte Naturraum des Baches trägt in sich das Potential eines grünen Rückgrats des Quartiers. Das Projekt sucht das starke landschaftliche Verweben des Baufeldes mit dem angrenzenden Dorfbach, welcher als Aufenthalts- und Spielort genutzt werden kann. Entlang der beidseitig gedeckten erdgeschossigen Lauben werden die Eingänge der 16 Wohnungen als eigenständige Adressen zusammengeführt. Die Laube dient als Erschliessungsraum, als gedeckter Aussenraum für die Wohnungen und bildet einen Schwellenbereich zwischen der Gemeinschaft und der Privatheit. Die reihenhausähnliche Typologie der Wohnungen ist für ein kollektives Familienwohnen prädestiniert.
Die Mietwohnungen werden durch die eigene Adresse, ihrer mehrgeschossigen Typologie mit eigenem Gartenanstoss oder begrünbarem Attikaanteil zum „Mieteinfamilienhaus“. Die kompakte Organisation der Grundrisstypen ermöglicht das Einhalten der gewünschten Wohnungsgrössen. Die erdgeschossigen Aussenräume der „dem Platz“ abgewandten Seite bilden den Wohnungen zugeordnete private Gartenräume. Entlang dem Siedlungseingang wird der Gemeinschaftraum angeordnet. Der Gebäudehülle in Holzmodulbauweise wird ein Rankengeflecht vorgelagert. Dieses Gitter prägt die Erscheinung des Gebäudes und fasst die zum Platzbereich liegenden Aussenräume des Attikageschosses räumlich ein. Es bildet ein mögliches Rankengerüst für Kletterpflanzen. Die Gebäudehülle wird somit örtlich Teil des umgebenden Gartenraumes und ermöglicht den oberen Wohneinheiten eine Begrünung des Dachgartens.
Aus den Bedingungen des konkreten Ortes entwickelt, entsteht eine kollektive kostengünstige Wohnform mit dem Potential zum identitätsstiftenden Ort für junge Familien.
- Any
- 2020
- Client
- Basler Baugenossenschaft


















