Woodhouse Rosendal
Uppsala, Sweden
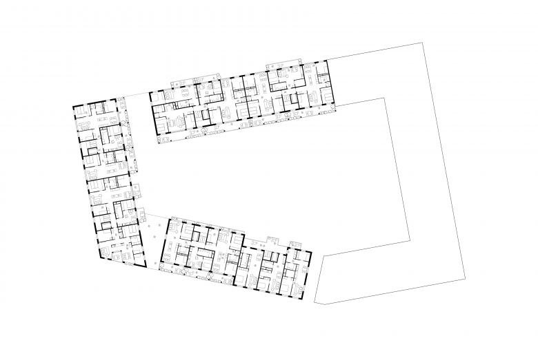
Woodhouse Rosendal is a new timber block in Uppsala with a strong character. The focus has been on how shared spaces, commercial facilities, cultivation and urban space can be used in a generous and innovative way for multi-family housing in the city. The aim is to offer a block with a community feeling – encouraging sharing and social encounters in spaces where goods and services can be efficiently traded and shared.
The project comprises 100 rental units of various sizes, ranging from townhouses to five and six-storey buildings. The proposal recognizes a demand for unconventional forms of accommodation, where one has access to additional activities, contexts and functions beyond the own dwelling; such as a workshop in the courtyard, a greenhouse on the roof, a space where you can repair your bike in a green and generous setting.
A varied range of residential buildings in solid timber offer a warm tangible materiality. The buildings will have an innovation and sustainability-oriented perspective, and a minimized ecological footprint. Woodhouse Rosendal has therefore been designed according to the Passive House standard, and will be built of renewable materials. Green roofs and the green urban courtyard offer an opportunity to treat rainwater as a resource, in retention and for cultivation and play. By focusing on pedestrian and cyclist aspects and by minimizing garage spaces, large trees can instead be planted in the space.
© Kjellander Sjöberg
Photography: Johan Fowelin
- Architects
- Kjellander Sjöberg
- Any
- 2019
- Client
- Skandia Fastigheter
- Equip
- Stefan Sjöberg, Ola Kjellander, Susanna Bremberg, Aksel Wunsch Widoff, Andrea Sclafani, Iselin Marie Johansen, Erik Werner, Martin Kraft, Jesus Franch, Lukas Jonell, Alessandro Macaluso, Lars Almgren, Simon Estié
- Collaborator
- Urbio
Projectes relacionats
Revista
-
-
Building of the Week
A Loop for the Arts: The Xiao Feng Art Museum in Hangzhou
Eduard Kögel, ZAO / Zhang Ke Architecture Office | 15.12.2025 -


















