Neubau Wohn- und Werkstättengebäude Garage Johann Frei AG
Bauherrschaft:
Garage Johann Frei AG
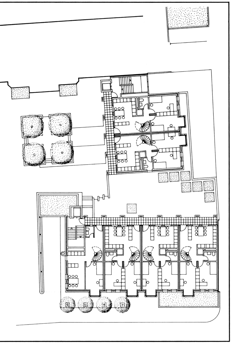
Städtebau:
Schliessen einer Baulücke, Aufnahme der Gebäudeflucht an der Wildbachstrasse mit Einfahrt zu den Werkstätten, ruhiger Hinterhof mit Zugängen zu den Wohnungen.
Nutzung:
Als Gewerbebetrieb einer Autogarage und 12 Laubengangwohnungen verschiedener Grösse
Konstruktion:
Untergeschosse, Decken und Wände in Stahlbeton oder Mauerwerk, zweischalige Aussenwände mit Dämmung und Kalksandsteinmauerwerk
- Any
- 1987




