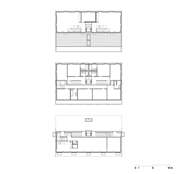
Neubau Wohnhaus Kirchstrasse
Im Park eines bestehenden Wohnhauses erbaut, stellt die “Stadtvilla“ mit Gartenwohnung und zwei Maisonette Attika-Wohnungen eine qualitätvolle Verdichtung nach innen dar.
Sandgestrahlte Sichtbetonfassaden sowie ein Innenausbau aus heimischem Fichtenholz charakterisieren den Neubau.
- Year
- 2010
- Project Status
- Built
- Team
- Roger Durrer, Beni Hess
- Fotografien
- Roger Frei, Zürich








