Heilpädagogische Schule Langenthal
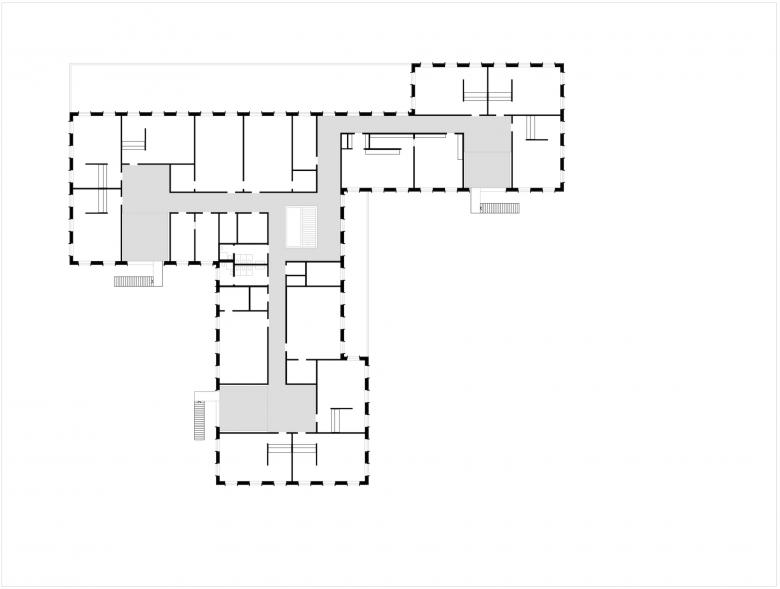
In das dreiecksförmige Grundstück wird ein ausgreifender, zweigeschossiger Baukörper gesetzt, der gut proportionierte Aussenräume mit unterschiedlichen Charakteren entstehen lässt: Spielwiese – Spielplatz – Pausenplatz – Vorfahrt – Parking.
Im Obergeschoss befinden sich die Unterrichts-, Werk- und Therapieräume - im Erdgeschoss Kindergarten, Schulküche, Personalzimmer sowie der Verwaltungs- und Versorgungsbereich. Die zweigeschossige Turnhalle mit den dazugehörenden Nebenräumen ist im Untergeschoss angeordnet. Dies ermöglicht einen unmittelbaren Sichtbezug zur Eingangshalle im Erdgeschoss sowie eine direkte blendfreie Belichtung.
Die zweiseitig belichteten Unterrichtsräume sind jeweils um ein gemeinsames Pausenfoyer organisiert, das sich zu einem Freiluftzimmer orientiert. Es entsteht ein kollektiver Universalraum, der die Möglichkeit eröffnet auch ausserhalb des Klassenzimmers zu lehren und zu lernen. - Er bietet genügend Platz zum Spielen. Das Freiluftzimmer, ein windgeschützter Aussenraum, erzeugt einen Lichtwandel über den ganzen Tag hinweg und gibt den Ausblick in die Landschaft frei. Ein Treppenlauf führt auf direktem Wege zu den vielfältigen Spiel- und Pausenbereichen im Erdgeschoss.
- Anno
- 2010
- Cliente
- Stiftung Heilpädagogische Schule, Langenthal
- Baumanagement
- B+P Baurealisation AG, Zürich
- Bauphysik
- Bakus Bauphysik GmbH, Zürich
- Lichtplaner
- Nachtaktiv Reto Marty, Zürich
- Landschaftsarchitekt
- Raderschall Partner AG, Meilen






