Europäische Schule Straßburg

Straßburg, Francia
Foto © Roland Halbe

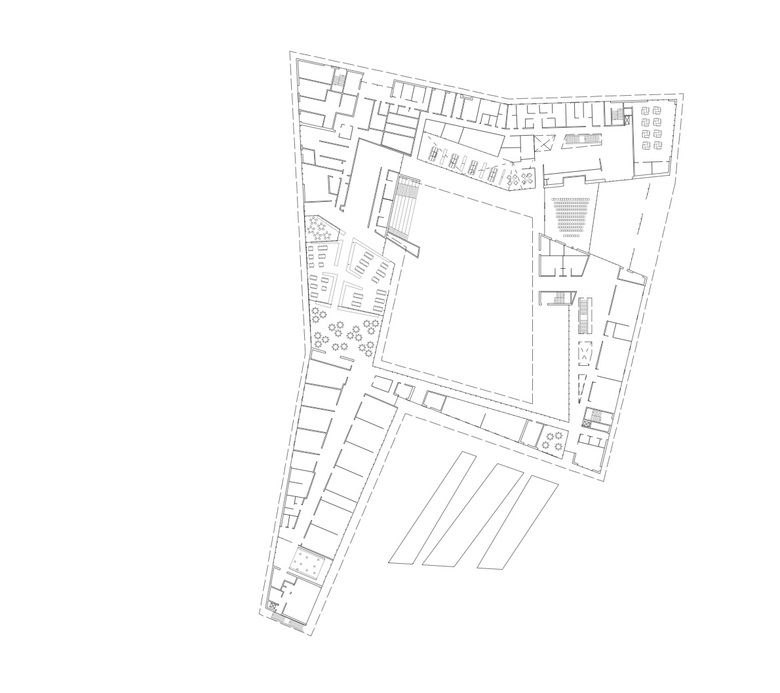
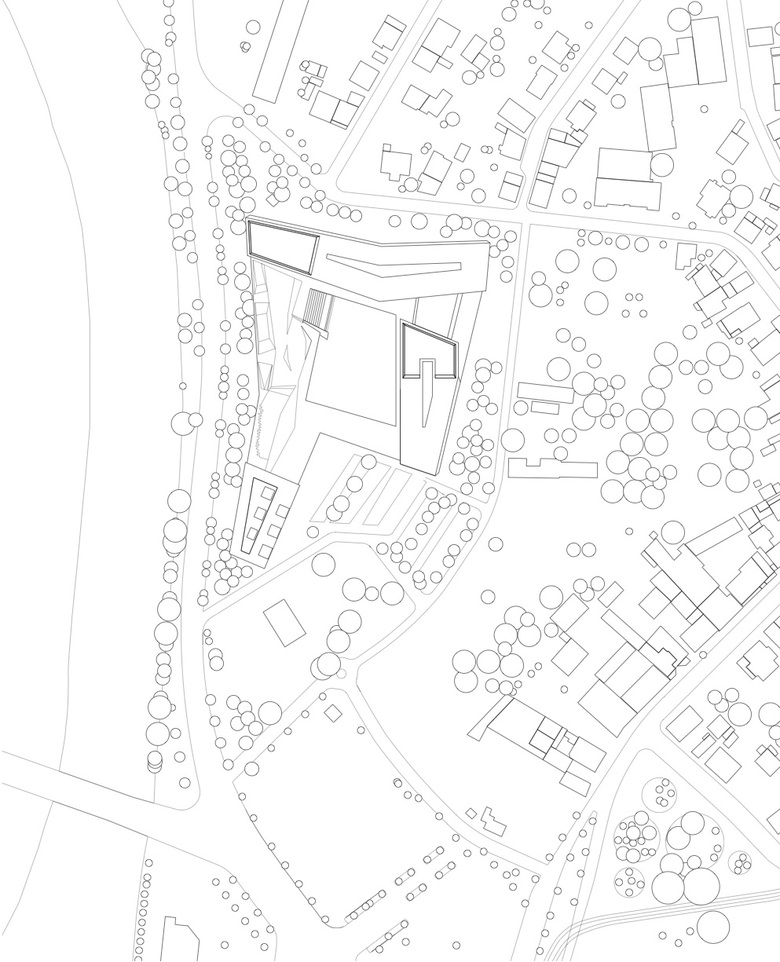
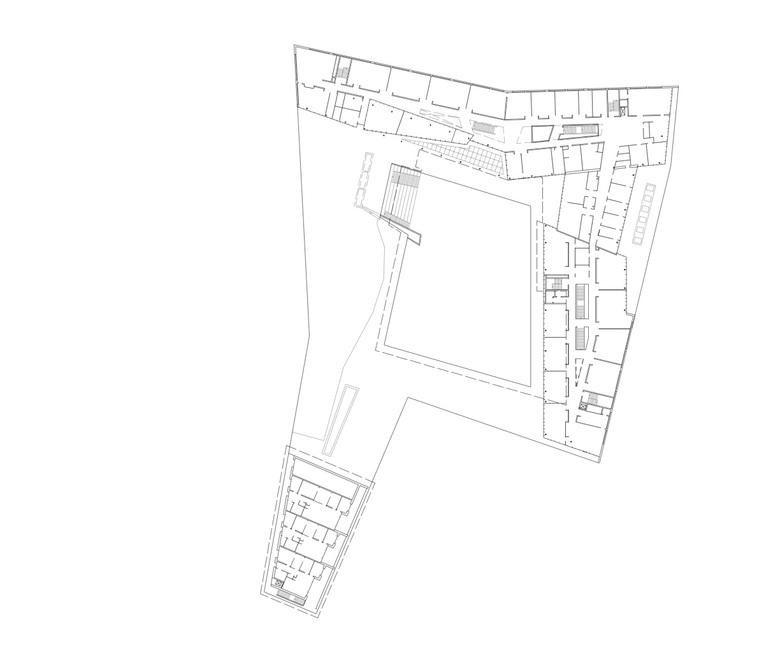
Das Schulgebäude liegt auf einem Grundstück mit dichtem Baumbestand. Die drei klar ablesbaren Baukörper des Kindergartens, der Grundschule und des Gymnasiums gruppieren sich um einen zentralen Innenhof. Im Erdgeschoss befinden sich die gemeinsam genutzten Bereiche, wie Bibliothek, Multifunktionssaal und Mensa. Trotz der Differenzierung der Funktionseinheiten fasst eine durchgängige, plastisch geformte Fassade die Baukörper zu einem gemeinsamen Ganzen zusammen, wodurch das Leitbild des neuen Typus der „Europäische Schule“ klar hervortritt: Gemeinsamkeiten leben und kultivieren.

Auftraggeber
Stadt Straßburg

Bruttogeschossfläche
13.495 m2

Bruttorauminhalt
63.000 m3

Leistungsbild
Generalplanung
Mission de base MOP complète,
entspr. Lph 1 – 9 HOAI

Partnerbüro
drlw architectes, Strasbourg

Foto © Roland Halbe
Foto © Roland Halbe
Foto © Roland Halbe
Foto © Roland Halbe
Anno
2015

Altri progetti di Auer Weber 

Universitätszentrum Lyon
Lyon, Francia
Sanierung und Erweiterung Inselhalle Lindau
Lindau, Germania
U-Bahn Verteilerebene Hauptbahnhof München
München, Germania
Orgelprospekt der Konstantin-Basilika
Trier, Germania
Sparkasse Allgäu Hauptstelle Kempten
Kempten, Germania