书一·飞鸟集自习室 | 多么工作室Atelier d'More
Atelier d’More was commissioned to design a self-study room for Bosuer as its first store opening in Shanghai, hoping to create a soft habitat in the city where struggling people can recharge. The project is located in the northwest corner of the 10th floor of Baolong Plaza office building in Qingpu, Shanghai. It is enclosed by floor-to-ceiling glass windows on the northwest and white walls on the southeast sides.
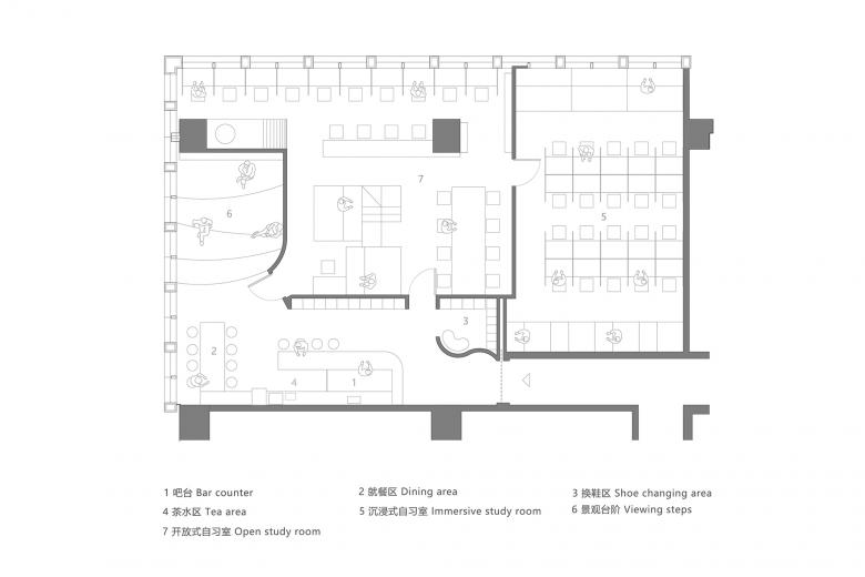
The characteristics of the study room determine that it will have higher requirements in sound insulation. We hope to create a quiet study space, and provide a leisure space for users to relax as well. Our key concern in the stage of plane layout is how to arrange these functional blocks, so that each space does not interfere with each other while connection can be found in between.
In the design of the entrance image, we intend to create a visual focus point at the end of the corridor, bringing a touch of warmth and softness to the office building. The gently undulating ceiling, conceals intricate pipes, which shows an image of neat and soft. The concrete floor slabs of the original building weave through the cloud-like ceiling, as if it were a gentle utopia that grew out of a reinforced concrete city.
In the open study area, we designed different types of seats to meet different needs. Along the floor-to-ceiling glass windows at the north side are the independent seats with a good view. Each seat is separated by a translucent curtain. The curtains are arranged in a row to form the form of pages, which "cloth book" is a homonym for "not losing".
Above the single row of self-study seats adjacent to the window seats, there are four lifting devices. The users can control the lifting through the switch on the desktop. When the device is lowered to the desktop, it blocks the interference when someone passes by and helps users focus more on their desktop.
The two-story cabins in the center of the open study area are designed to be double study rooms. We chose a translucent material as the enclosure of the first floor of the cabins to increase the hierarchy of the space, while maintaining the visual translucency. And the second floor is enclosed with wood panels to give more security.
Mind wandering can be one of the ways to get rest. The “Bird's Nest” was created to add a resting place within a limited space. Taking advantage of the height of the building, we created a climbing space, which is accessed from the opening by a ladder, where you can either lie down and rest, or look out the window through a small hole in the side wall.
The wavy steps in front of the window are like rolling sand dunes, while the whole wall of bookshelves is like a forest waiting to be explored. The space along the windows on the west side is set for the leisure area, not only because it has the most beautiful scenery and the warmest sunset, but also considering the heat of the setting sun, it is not suitable for setting up seats for self-study, so the leisure area for short stay is the best choice. The small round hole on the partition wall between the leisure area and the self-study area is a little surprise designed for the self-study area. At a certain time, the setting sun will pass through the hole and shine into the self-study area, and the two separated spaces will share the beautiful moments of nature.
We believe that a good place is one that people can interact with, which people are interested to explore and experience. From the large space to the small objects, there are reflections on our future exploration. The geometric elements in the space are like Monument Valley, where every step and every door is calling you forward.
- Jaar
- 2021
- Project Status
- Built





















