睡眠研究所·糖
此项目位于北京通州区台湖镇唐大庄村,其特殊的地理位置使其与北京环球影城度假区相距仅 2 公里,成为环球影城周边距离最近的民宿村落之一。我们的项目处在村子东南角的十字路口这一关键位置。初临此地,映入眼帘的是一片荒芜衰败之景,坡屋顶建筑的房盖缺失,庭院中杂草丛生,门窗洞口更是被改得奇形怪状。经一番了解,原是前一租户欲将此地打造为民宿,却在装修中途搁浅,最终无奈放弃。于是,业主委托多么工作室对其进行全面改造,仍作民宿之用
在我们的设计中时常强调三个关键词,流动、衔接、延伸。几何体量流动的关系,以及建筑在场域中的气质,一直是我们的关注重点,也是我们的设计惯性,这种惯性是无意识的并且随着时间在不断转变。起初,建筑外墙的沿街立面凌乱不堪,平顶与坡顶房的山墙面生硬拼接,呈现出随意、单调的沿街景象。为扭转这一局面,重塑位于主要路口建筑的形象,赋予其体量感与可辨识度,我们进行了深入的推敲。先是给予建筑一个微微向前的力,并以入口门洞的四个角为起点向四周延伸至建筑的边缘,塑造出全新的结构线,随后将这些线条柔化,形成一个内凹形的入口灰空间,使扁平的墙体有了几何雕塑感,静态的建筑有了流动感。这个充满流动感的入口,既实现了雨棚的功能,又不见雨棚,完美地融入到了建筑的身体。而这些流动的线条与一望无际的白色,为建筑赋予了诗意与惊喜之感
鉴于建筑原本的破败状况,为使其脱胎换骨,我们并未选择大刀阔斧的推倒重建,而是采用融合的方式,从既有建筑中探寻可结合的线索,对其进行细微的改造,以营造出颠覆性改变的错觉。我们将这种改造方式称为建筑整容。这里的整容绝非简单的粉刷与修整,而是基于原本的结构骨架建立一种新的秩序关系。通过少量局部的改造,影响建筑的大部分感官效果。在新形象中仍能窥见旧建筑的影子,甚至能让您察觉到其变美的过程
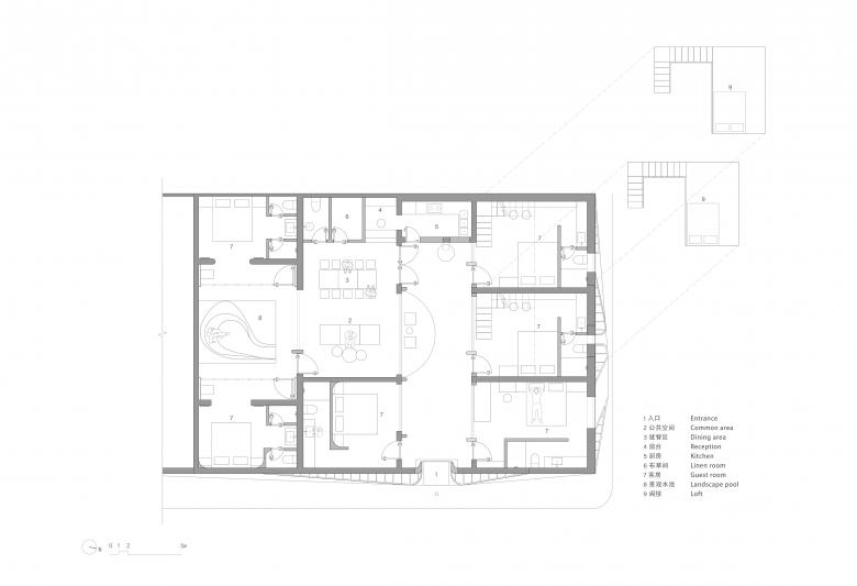
平面布局大体维持了原本建筑的关系框架。由于前一任租户已砌好了客房的隔墙,为了节省成本,我们只能基于此进行房间分配。在充分考量流线与动静分区后,我们将前院平房的三个开间中,两间合并为一个公共空间,设置了休息区、餐厅、前台、布草间、卫生间。坡顶房的三个开间里,其中两间已有用于隔层的钢结构,我们继续将其打造成 LOFT 家庭房。公区大厅的位置一经确定,两个院子便与其共同成为整个场地的核心区域,为四周的客房提供服务。
两个院子原本就存在于建筑之中,皆给人以内向宁静的氛围。我们将前院定义为开放空间,左右两侧的建构形式对称且有秩序,塑造出了极具精神性的纯白院落空间。后院则相对封闭,主要为客人提供一个具有一定私密性、可供放空发呆的室外活动空间。而大厅空间成为了连接前后两个院子的媒介,大块透明的落地玻璃面使光和视线得以贯穿。
少量的材料、极少的装饰,一直是我们对纯粹空间的向往与追求。在我们的设计中,始终秉持着对建筑、空间、家具一体化控制的理念。项目中大部分工作都是由设计师通过数字化方法预制,再由师傅现场手工制作完成,大到建筑外墙、屋顶雨水嘴、大门,小至室内的房门、床架、家具,都倾注着我们的专注与匠心。相较于直接购置成品,我们更倾向于让各个元素在现场诞生,它们彼此自然共生,仅需少量必要的成品作为补充,只为营造出独属于我们的设计语言、整体自然协调统一的空间,让建筑语言随时间沉淀,愈发醇厚。
- Jaar
- 2024
- Project Status
- Built































