Haus Stokar
Subtile Eingriffe in wertvollem Bestand
Das Haus Stokar ist ein hundertjähriges Haus gebaut für einen Kunstmaler. Es liegt mit seinem grossen Garten am Zürichberg in gegen Westen abfallender Hanglage. Das Quartier atmet noch in weiten Teilen die verträumte Atmosphäre vergangener Zeit. Grosse dunkle Bäume umstehen das behäbige Gebäude.
Der Eingriff umfasst die Anpassung und Modernisierung sämtlicher Innenräume. Das Äussere des Hauses bleibt unverändert. Die Kleinteiligkeit der Raumeinteilung wird im Erdgeschoss aufgebrochen, wodurch man eine grosszügige Küche mit Esstisch und ein in der Raumhöhe abgestuftes Wohnzimmer mit Bücherwand gewinnt. Beide Räume orientieren sich jetzt über mehrere unterschiedliche Fenster auf drei Seiten. Im Obergeschoss wird anstelle eines Schlafzimmers ein zweites Bad eingerichtet.
Der vorgefundene Charakter des Hauses ist sehr präsent und umfassend. Bei den baulichen Eingriffen, die nicht sämtliche Räume des Gebäudes betreffen, wird versucht vorhandene architektonische Themen zu übernehmen und neu zu formulieren.
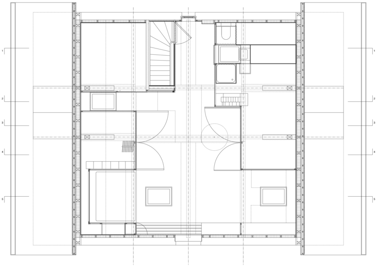
Dachraum mit Charakter
Nach dem 1999 erfolgten Umbau des Hauses wünscht sich die Bauherrschaft den Ausbau und die Neugestaltung des Dachgeschosses in ein Kinderzimmer mit Bad. Zusätzlich zur neugewonnen Wohnfläche soll soviel Stauraum wie möglich angeboten werden und durch das thermische Isolieren der Dachfläche soll der Heizenergiebedarf deutlich reduziert werden.
Eine Hülle, Boden - Wand - Decke, kleidet den Dachraum ein und verdeckt das Gebälk. Es entsteht ein Raum im Raum. Durch Öffnungen in der Wand erhält der Raum Nischen mit unterschiedlichen Funktionen: eine Schlafnische, eine Arbeitsnische, ein Stauraum und eine Nische für Dusche und WC. Fenster in der schrägen Dachfläche ergänzen die Nischen. Der ‚Pochet‘-Raum zwischen Verkleidung und Dachschräge dient als Stauraum und wird durch raumhohe Wandtüren erschlossen.
Der Dachraum ist ein spezieller Ort im Haus und soll dies auch bleiben. Der eher rauhe und rohe Charakter des ‚Dachbodens‘ wird in der Materialisierung thematisiert. Der bestehende Tannenriemenboden bleibt erhalten, die Wand- und Dachverkleidung wird in weiss geschlemmten Tannenbrettern ausgeführt. Die direkte und einfache Detaillierung - Horizontalbretter als Aussteifung der Wandtüren, Kistenbeschläge, Kellerarmaturen im Bad - unterstreicht die Gewählte Referenz.
Projekt: Haus Stokar, Zürich
Adresse: Burenweg, 8053 Zürich
Umbau und Instandsetzung
Direktauftrag
Bauherrschaft: privat
Fertigstellung: 1999 / 2004
- Jaar
- 2004
- Project Status
- Built
- Klant
- privat
- Team
- Lukas Felder, Vanessa Suhi







