Erweiterung Schulanlage Hofmatt
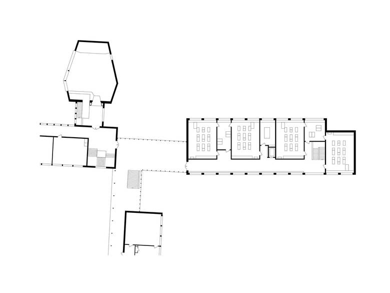
Die kammartige Primarschulanlage Hofmatt wurde in den 50er Jahren vom Basler Architekten Max Schneider erbaut und ist ein gelungenes Beispiel ihrer Zeit. Der Bedarf von acht zusätzlichen Klassenzimmern machte eine Erweiterung notwendig, welche mit einem zusätzlichen Fingerbau auf einfache Weise umgesetzt werden konnte. Zentrales Element der Erweiterung ist der neue Verbindungsbau, welcher den bestehenden Laubengang zum Neubau hin verlängert und zugleich den neuen Haupteingang bildet.
Die Grundrisstypologie des zweigeschossigen Gebäudes entwickelt sich aus dem Bestand heraus. Pro Stockwerk sind jeweils vier Schulzimmer entlang eines breiten Korridors angeordnet. Zwischen den Schulzimmern eingefügte Gruppenräume brechen den Korridor auf und eröffnen spannende Querbezüge. Mittels des überhohen Erdgeschosses und der gefalteten Dachfigur werden so alle Räume optimal belichtet.
Der Fingerbau ist mineralisch verputzt. Die Textur und Farbigkeit der Putzflächen orientiert sich am Bestand und ist in hellen Grau-, Beige- und Weisstönen gehalten. Dunkelgrüne Holz-Aluminium-Fenster setzen einen Akzent. Das zenitale Tageslicht prägt die hell gestalteten Innenräume.
2016–2018
Bauherrschaft : Einwohnergemeinde Gelterkinden
Mitarbeit : Katja Bigler, Christian Gut, Marc Haller
- Jaar
- 2018






















