Sanierung und Erweiterung Schulanlage Laubegg

Bern, Zwitserland

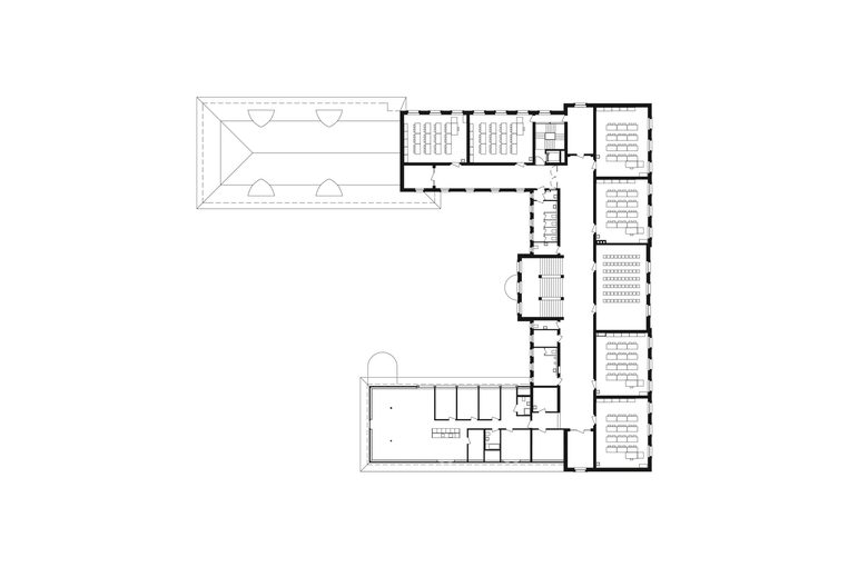
Das denkmalgeschützte Schulhaus Laubegg sollte nach langer Gebrauchsdauer eine nachhaltige Auffrischung erfahren und komplett saniert werden. Die betrieblichen Abläufe waren zu optimieren und die gesetzlichen Anforderungen zu erfüllen. Die Bibliothek, Turnhalle, Musikzimmer, Schulküche, Tagesschule und die Spezialzimmer wurden den aktuellen Ansprüchen nicht mehr gerecht. Der aus den 50er Jahren stammende Anbau wurde stärker in die Gesamtanlage eingebunden und über die neue erdgeschossige Verglasung mit einer Bibliothek ergänzt.

Die Fassade ist mit besonderem Augenmerk auf die denkmalpflegerischen Aspekte behutsam instandgesetzt worden. Alle unpassenden Fassadenelemente wurden entfernt. Die neuen Gestaltungselemente ergänzen den Bau im Sinne des ursprünglichen Bestandes. Auf eine nachträgliche Dämmung der Fassaden konnte aus Rücksicht auf die hochwertige Altbausubstanz verzichtet werden, da der Dachboden und die erdberührenden Böden nachträglich gedämmt worden sind. Die bestehenden Metallfenster sind durch gut gedämmte Holzfenster mit äusseren gekitteten Gläsern ausgetauscht worden. Der Ersatz der Rafflamellenstoren erfolgte durch filigrane Stoffmarkisen. Die beschädigten Sandstein- und Putzpartien (Kellenwurf) mussten nur punktuell restauriert werden. Die gesamte Farbgestaltung wurde nach den Originalfarben gehalten. Bei Elementen ohne erhaltenen Grundlagen erfolgte eine Interpretation in Rücksprache mit der Denkmalpflege. Die innere Tragstruktur musste erdbebenertüchtigt werden. Sämtliche Brandschutz- und Sicherheitsmängel sind behoben worden.

Der gedeckte Raum unter dem Schulhausanbau wurde zu einer Bibliothek umfunktioniert, welche sowohl der Schule wie auch den Anwohner zur Benutzung freisteht.

2003 – 2011

Bauherrschaft: Hochbauamt Stadt Bern

Jaar
2011

Andere projecten van Haller Gut 

Erweiterung Schulanlage Hofmatt
Gelterkinden, Zwitserland
Sanierung und Erweiterung Schulanlage
Wangen an der Aare, Zwitserland
Sanierung und Erweiterung Evivo
Burgdorf, Zwitserland
Schulhaus Aarberg
Aarberg, Zwitserland
Sanierung Schulanlage Höheweg
Langnau, Zwitserland