Scuola dell‘infanzia San Giorgio

Morbio Inferiore, Zwitserland

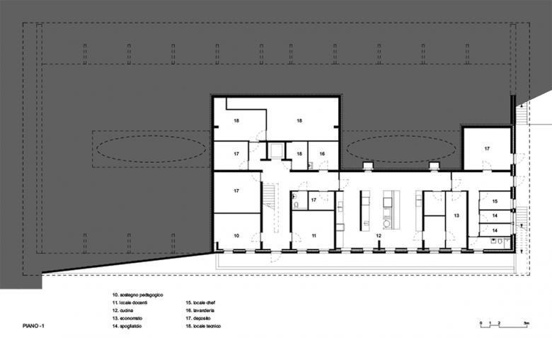
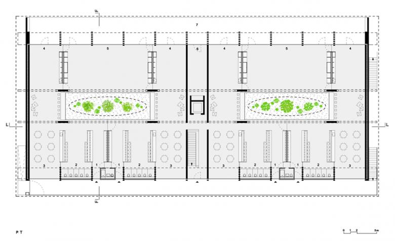
L’edificio definisce con un grande tetto, una lastra orizzontale, il limite sud di un terrapieno rettangolare, posizionandosi tra la scuola elementare, un’area boschiva con biotopo e la scuola media, in modo di mantenere libera la parte nord, quale spazio di riferimento. Le 4 sezioni sono disposte su un piano unico, suddivise in due comparti di due sezioni. Al centro dei comparti si trova un patio vetrato: un’apertura ellittica verso il cielo, un giardino, quale elemento di divisorio e di riferimento, attorno al quale si svolgono le varie attività. Gli spazi di supporto sono collocati al piano inferiore. Il sistema costruttivo è composto da un basamento in cemento armato e da una grande copertura in legno, composta da una serie di travetti, appoggiati sui 4 assi strutturali longitudinali. Essi sono composti da due muri arcati in cemento armato centrali e travi composte in legno laterali che formano delle nicchie verso i ballatoi.

Jaar
2018

Andere projecten van Könz Architetto 

Casa al Boschetto
Verscio, Zwitserland
Dighe Lago Bianco
Bernina, Zwitserland
Nuovi Posteggi Comunali
Carona, Zwitserland
Casa Parrocchiale San Abbondio
Gentilino, Zwitserland
Casa Rurale - Riattazione
Agno, Zwitserland