Haus K
Für ein Grundstück im Osten von Dreieich-Götzenhain, einer Kleinstadt im Umland von Frankfurt am Main, war ein Einfamilienhaus zu entwerfen. Bis heute ist das Quartier durch den suburbanen Siedlungsbau für die zunehmend wohlhabende Gesellschaft des Wirtschaftswunders der 1960er Jahre geprägt. Die ursprünglich vergleichsweise einheitliche städtebauliche Struktur aus ein- bis zweigeschossigen Einfamilienhäusern hat sich seitdem jedoch grundlegend gewandelt. So kennzeichnet sich das Viertel heute durch eine spürbar höhere bauliche Verdichtung und einen breitgefächerten Stilmix, der die individuellen Vorlieben der heutigen Bewohner lesbar macht und den vormaligen stilistischen Konsens der Nachbarschaft längst abgelöst hat.
Auf diesen Kontext antwortet Haus K mit einer auf den ersten Blick klaren und nahezu minimalistischen Architektur. Diese initiiert durch die Reduktion auf klar geschnittene kubische Formen und den weitgehenden Verzicht auf lesbare baukonstruktive Details ein Spiel aus Flächen und Licht, das sich an die formal-skulpturalen und atmosphärischen Intentionen der klassischen Moderne anlehnt.
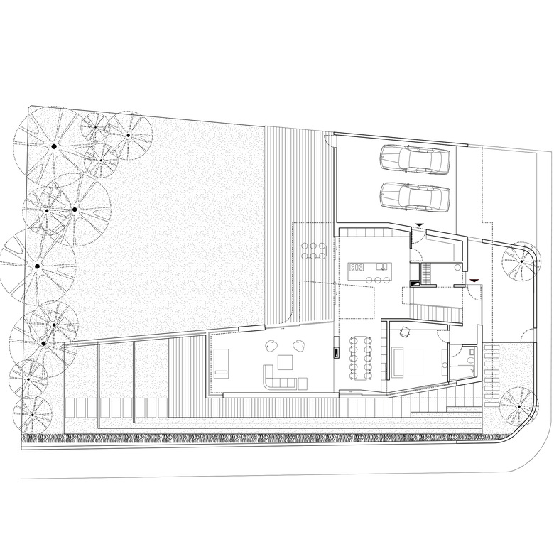
Als Eckhaus muss Haus K recht unterschiedliche städtebauliche Einflüsse beantworten, markiert es doch auch den Übergang von suburbanem Wohnviertel zu landwirtschaftlich geprägter Landschaft und kleineren Gewerbegebieten. Einerseits nimmt das Haus an seiner Westseite über einen eingeschossigen Anbau die Reihe bestehender ein- und zweigeschossiger Einfamilienhäuser auf. An der Ostseite ändern sich Ausrichtung und Bezüge deutlich. Mit einem gestaffelten und in Nord-Südrichtung orientierten Volumen wird die hier zwei- bis dreigeschossige Straßenbebauung aufgenommen und die Grenze zwischen Wohnviertel und Landschaft mit einer prägnanten Fassade ausformuliert.
So erscheint das Haus im Norden und Osten kubisch und abstrakt. Durch den eingefassten Vorhof und eine weitgehend geschlossene Fassade werden Bezüge zum Außenraum minimiert. Auf der der Südwestseite löst sich das Haus zum privaten Garten durch großflächige Öffnungen, Auskragungen und Terrassen auf, um sich mit diesem vielfältig zu verbinden.
Indem das Raumkonzept aus der Überlagerung der für die Nachkriegsarchitektur (auch von Götzenhain) typischen L- und U-förmigen Bungalowtypologien entwickelt wird, bezieht sich Haus K auf bekannte und lokal spezifischen Typologien: daraus folgt im Erdgeschoss ein L-förmiger Grundriss, der die Terrasse rahmt und die Beziehungen zwischen Innenraum und Garten verstärkt. Die so gerahmte Terrasse wird durch großflächige Verglasungen und verschiedene Öffnungsflügel mit der offenen Wohnlandschaft des Innenraums verbunden. Im Obergeschoss ist das Haus als zweiflügeliges Volumen ausgebildet, das zwei durch eine Brücke verbundene Schlafflügel ausbildet. Zwischen den Flügeln entsteht ein großzügiger Luftraum, der die Wohnräume im Erdgeschoss mit denen des Obergeschosses und dem Außenraum der Terrasse verbindet.
So wird die Verzahnung von Innen- und Außenräumen mit unterschiedlichen architektonischen Mitteln verstärkt: die Terrasse dient als außenliegender Wohnraum; ein Balkon erweitert eines der Kinderzimmer in den Garten; die Dachterrasse, die die Masterunit nach außen erweitert, rahmt den Blick in die Landschaft und Garten; der Tiefhof gibt der Einliegerwohnung einen geschützten Außenraum; und das Wohnzimmer wird an seinem südlichen Ende durch eine großflächige, über Eck geführte, Verglasung einem Wintergarten ähnlich.
Dem Wunsch der Bauherren nach einem dezidiert modern gestalteten Haus entspricht auch das Materialkonzept: die scharf geschnittene Gebäudegeometrie des formal expressiven und abstrakten Hauses wird durch einen feinen weiß gestrichenen Glattputz und das Fehlen typischer und baukonstruktiv eigentlich notwendiger Details, wie zum Beispiel einer Attikaverblechung oder von Fensterbänken, verstärkt. Dazu wurde das Wärmedämmverbundsystem teilweise schräg modelliert, an den Übergängen zu horizontalen Flächen mit einer Schicht aus Flüssigkunststoff abgedichtet, und an der Attika zusätzlich mit Kunststoffleisten versehen, die das Wasser kontrolliert von der Fassade wegführen.
Auch der Innenraum zeigt sich pur und abstrahiert: hier dominieren geschliffene weiße Putzflächen und, im Erdgeschoss, ein geschliffener Zementestrich. Um das Spiel der Flächen zu stärken, wurde auf Fußleisten verzichtet. Vorhangschienen und Spotlights wurden eingelassen, und auch Fensterrahmen wurden versteckt eingebaut.
Haus K soll gleichzeitig Wohnhaus und Erholungsort sein und die funktionalen und ortsspezifischen Ansprüche eines Einfamilienhauses mit den atmosphärischen Besonderheiten eines „holiday homes“ kombinieren – eine Architektur, die das Alltägliche formal und atmosphärisch überhöht.
- Jaar
- 2013
- Team
- Daniela Hake, Holger Hoffmann, Gabriel Wüstner
- LPH5-8
- Dussling-Müller Architekten










