Bergstation und Restaurant Horbergbahn
arp – architekten reitter pfleger
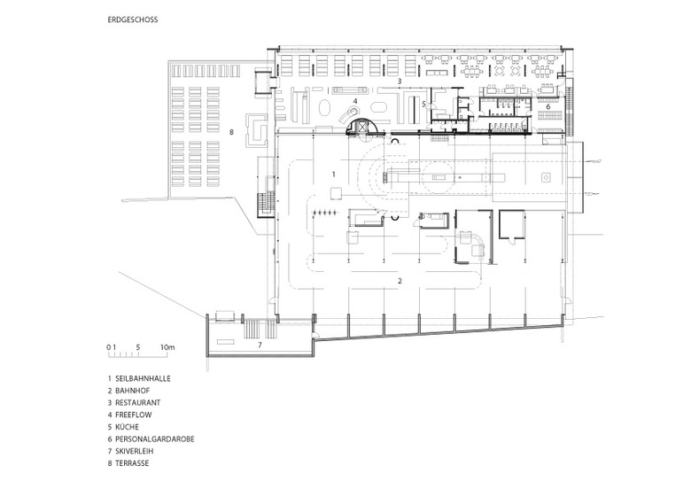
Dass es sich bei der in rund 1.700 Meter Seehöhe errichteten Bergstation der Mayrhofner Horbergbahn um das Recycling bzw. die Überformung einer ehemaligen Struktur aus den 1960er Jahren handelt, ist dem anmutig sachlichen, an den beiden Stirnseiten vollflächig verglasten Gebäude nicht anzumerken. Die Station, die als Zubringer zum Skigebiet Schwendau-Penken große Transportkapazitäten zu bewältigen hat, sollte anfänglich nur im Restaurantbereich (das ursprünglich im Unterbau der Lifthalle untergebracht war) ausgebaut werden, doch die Architekten haben aus dieser Anforderung eine umfassende räumliche Neuordnung entwickelt, die nicht nur die funktionalen Abläufe der Bergstation verbesserte, sondern die gesamte Anlage architektonisch auf eine höhere Qualitätsstufe hob.
Die Ankunftshalle wurde in Längsrichtung geteilt, zwei Drittel sind dem Seilbahnhof vorbehalten, ein Drittel wurde niveaugleich zum Restaurant ausgebaut, und hinter den Rolltoren des Untergeschosses stehen nun ausreichend Flächen für Werkstätten, Garagen, Serviceräume, Pistenfahrzeuge etc. zur Verfügung.
Ostseitig wurden an die bestehende Stahlkonstruktion der alten Satteldachhalle zwei Joche angehängt, und an der exponierten Nordseite geht die ehemalige Kante des nun mit Calcit-Blechen gedeckten Daches in ein schutzbietendes Halbkreisprofil über, das die Fensterfront des neuen Gastraums mit einer räumlichen Geste umfängt.
(Text: Gabriele Kaiser)
- Jaar
- 1999
- Project Status
- Built








