MPREIS Steinach
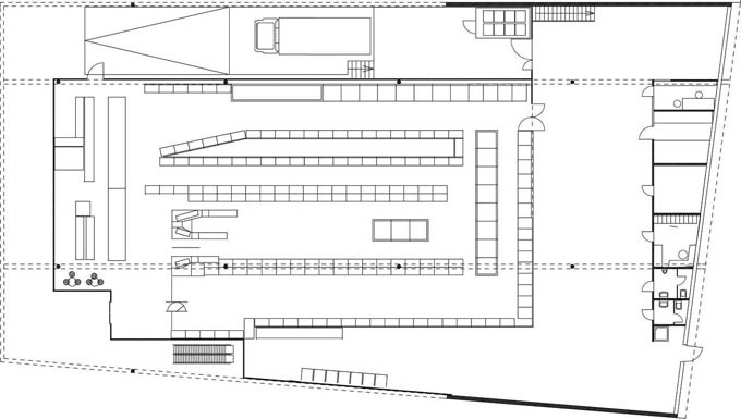
Die Größe von Lebensmittelmärkten ist seit 2001 durch die Tiroler Raumordnung neu geregelt. In Orten unter 10.000 Einwohnern ist die maximale Verkaufsfläche 600m2, in größeren Städten 800m2 und nur in Innsbruck bis zu 1.200m2. MPreis hat in diesen Kategorien bisher über 110 Märkte errichtet, mit einem Sortiment von 8.000 - 12.000 Produkten und einer jeweils maßgeschneiderten Architektur. Der Bau in Steinach brachte am Ende der 1990er Jahre eine neue Dimension in die interne Typologiedebatte. Der Bau setzt den großen Elementen der Landschaft und der Verkehrsstraßen eine ähnlich starke Form entgegen. Eine lapidare, geneigte Dachplatte, unter der die Verkaufs- und Nebenräume offen eingeschoben sind, gibt dem Markt und seiner inneren Reizdichte eine ebenso einfache wie großräumige, nach außen orientierte Hülle. Eine minimalistische und dramatische Lösung. (aus: Bauen in Tirol seit 1980, Otto Kapfinger)
- Jaar
- 1998
- Project Status
- Built







