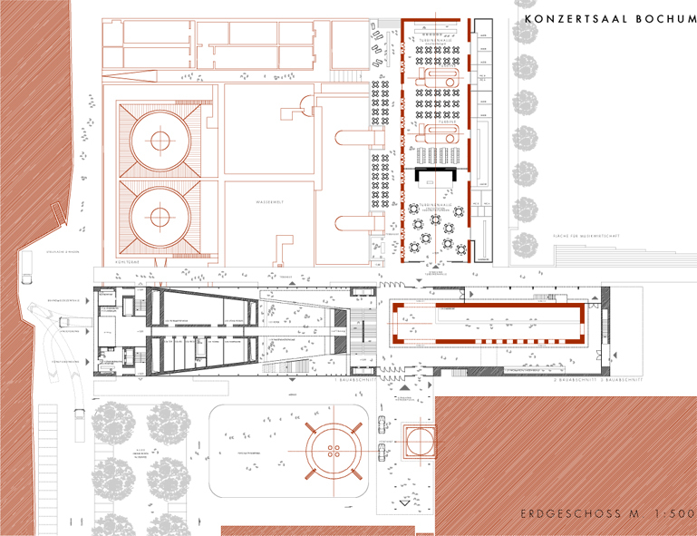
Konzertsaal
Wettbewerb, 1. PreisDie Charaktere der Industriebauten verdeutlichen, ihre Volumina integrieren und ihre Eigenheiten respektieren sowie die nördliche (Wasserwelt) und südliche (Platzgestaltung am Wasserturm) Ausdehnungsbegrenzung für einen Neubauentwurf: das sind die Parameter für die Entwicklung einer linearen Gebäudeidee als geometrischer Ansatz, die unter dem Oberbegriff einer Produktionsstrasse der Kultur zusammengefasst werden kann.
Wettbewerb
2004, 1. Preis
Auslober
Stadt Bochum
Projektarchitekt
Matthias Dittmann
Fläche
17.000 qm
- Jaar
- 2004








